Call the team on 01603 505 100 for more information
A three bedroom hall entrance terrace house in the sought after Golden Triangle area of Norwich
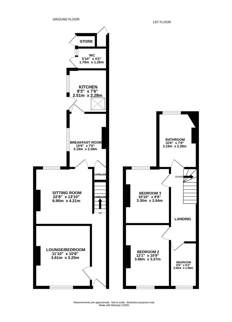
Currently let on an Assured Shorthold Tenancy generating £875 per calendar month (£10,500 per annum), this property offers an immediate income producing investment opportunity with the potential for income growth. The accommodation includes a ground floor bedroom, shared living room, kitchen, and breakfast room. The first floor provides three further bedrooms and a family bathroom, all accessed off the landing, making the layout particularly well suited to continued rental use or potential HMO configuration (subject to necessary consents). Externally, the property benefits from a sunny rear garden and on-road parking. Additional features include gas central heating and a highly convenient location,
Tenure
Freehold
Ground Floor
Hall, lounge/bedroom, living room, breakfast room, kitchen
First Floor
Landing, three bedrooms, bathroom
Outside
Small front garden, Non bisected and suprisingly private rear garden outside wc and store.
Viewings
Viewings have been arranged for Thursday 16 April Thursday 23 April Thursday 30 April Please telephone 01603 505100 so that a time slot can be allocated to you
Energy Efficiency Rating (EPC)
Current Rating E
Services
Interested parties are requested to make their own enquiries to the relevant authorities as to the availability of services.
Local Authority
Norwich City Council
Solicitors
Spire Solicitors LLP (Attleborough), Ref: Carl Heywood, Tel: 01953 453143
Important Notice to Prospective Buyers:
We draw your attention to the Special Conditions of Sale within the Legal Pack, referring to other charges in addition to the purchase price which may become payable. Such costs may include Search Fees, reimbursement of Sellers costs and Legal Fees, and Transfer Fees amongst others.
Additional Fees
Buyer's Premium - £900 inc VAT payable on exchange of contracts.
Administration Charge - £1200 inc VAT payable on exchange of contracts.
Disbursements - Please see the legal pack for any disbursements listed that may become payable by the purchaser on completion.
Disclaimer: The map preview provided above is for general guidance only and may not accurately reflect the exact location or surrounding buildings. Prospective buyers and interested parties are strongly advised to independently verify the precise location and surroundings before bidding.