For Sale By Auction | 10:00, 07 May 2026 | Lot 56A

8 Rayleigh Road, Stanford-Le-Hope, Essex SS17 0NE

*Guide | £250,000 - £270,000 (plus fees)

  • Mixed Use
  • Tenure: Freehold

Call the team on 01702 939933 for more information

Auction Date

Thu 07/05/2026

Auction Time

10:00

Auction Venue

Livestream Auction

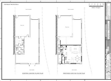
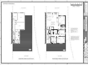
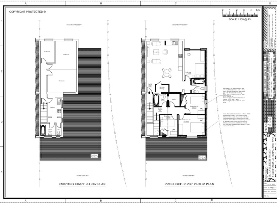
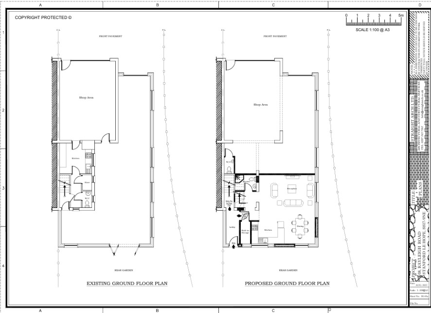
Freehold Mixed Use shop and flat with part completed extension and Planning Consent for further development

An exciting opportunity for Developers and investors. This end terrace mixed use property comprises a shop and two bed upper flat. A side and rear ground floor extension has been part built. Planning Consent was granted by Thurrock Council under Ref: 23/01059/FUL for a further extension to provide a shop, three bed maisonette and a one bed first floor flat. Positioned in a popular neighbourhood parade the property is close to A13 and only a few hundred yards from Stanford Le Hope railway station and town centre.

Tenure

Freehold

Ground Floor SHOP

Shop: 23'8" x 16'4" Store: 9'4" x 6'8" Door to Rear Hallway Storage: 3'7" x 3'1" WC: 3'7" x 6'6" Door to Communal rear Lobby

First Floor Flat

Ground Floor rear Entrance door hall and stairs to First Floor Landing: Lounge: 13'2" x 11'7" Bedroom 1: 13'2 x 12'2" Bedroom 2: 9'11" x 6'2" Kitchen: 11'3" x 6'1" Bathroom 9'4" x 5'2" Sep WC: 3' x 2'2" Externally

Floor Areas

EXISTING Shop: 540 Sq Ft F F Flat: 520 sq Ft Part Completed G F Extension: 646 Sq ft PROPOSED Ground Floor: 1238 Sq Ft First Floor: 1083 Sq Ft Total: 2421 Sq Ft

Council Tax Band

B

Energy Efficiency Rating (EPC)

Current Rating D

Services

Interested parties are requested to make their own enquiries to the relevant authorities as to the availability of services.

Local Authority

Thurrock Council

Solicitors

Brightstone Law, Ref: Sundit Puri, Tel: 020 8731 3080

Important Notice to Prospective Buyers:

We draw your attention to the Special Conditions of Sale within the Legal Pack, referring to other charges in addition to the purchase price which may become payable. Such costs may include Search Fees, reimbursement of Sellers costs and Legal Fees, and Transfer Fees amongst others.

Additional Fees

Buyer's Premium - £1200 inc VAT payable on exchange of contracts.

Administration Charge - £1200 inc VAT payable on exchange of contracts.

Disbursements - Please see the legal pack for any disbursements listed that may become payable by the purchaser on completion.

View Larger Map

Disclaimer: The map preview provided above is for general guidance only and may not accurately reflect the exact location or surrounding buildings. Prospective buyers and interested parties are strongly advised to independently verify the precise location and surroundings before bidding.