For Sale By Auction | 11:00 am, 26 October 2017 | Lot 12

The Old Chapel, Poulton Hall, Trinity Street, Bungay, Suffolk, NR35 1EQ

Sold £256,000

  • Office
  • Tenure: Freehold

Call the team on 01603 505 100 for more information

Auction Date

Thu 26/10/2017

Auction Time

11:00 am

Auction Venue

Unknown

Viewing Times:

Wed 4 Oct

09:30 am - 10:00 am

Wed 11 Oct

09:30 am - 10:00 am

Wed 18 Oct

09:30 am - 10:00 am

Former Wesleyan Methodist Chapel and School with development potential

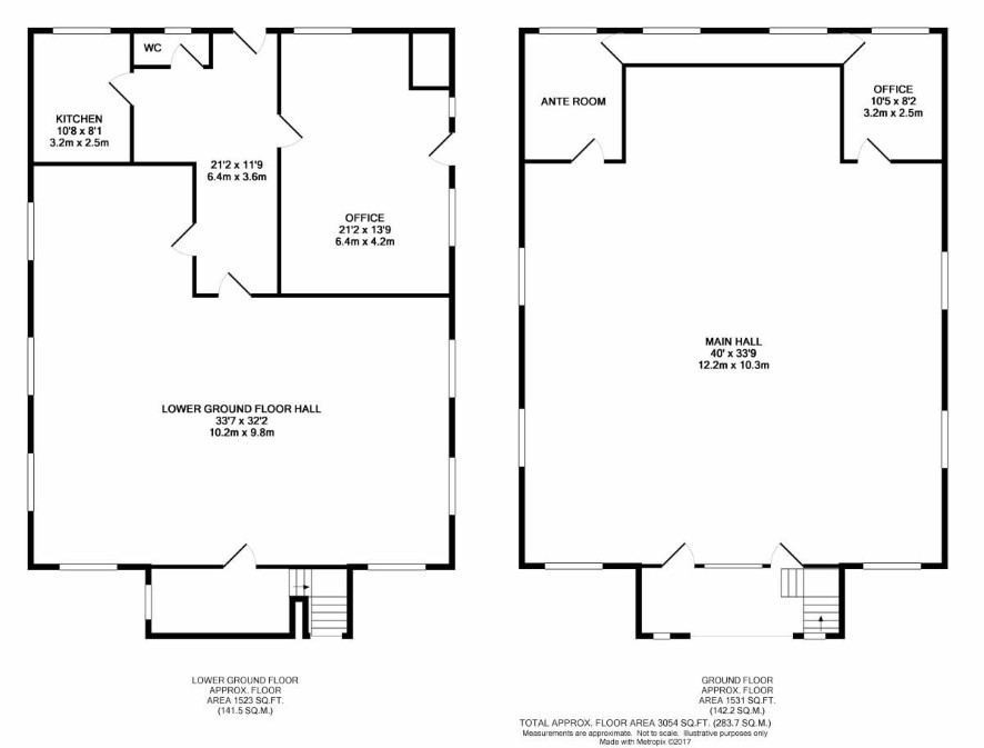
This historic town centre building was originally built in 1836 and was altered in 1900, and then again in 1940. There are a full range of school rooms in the basement with a main hall for worship situated on the ground floor. In addition there are kitchen facilities, offices and a cloakroom. The building benefits from private off-street parking facilities and until recently the property was used as a auction room for goods and chattels. Rarely do poperties of this stature and adaptability come to the market and therefore internal inspection is highly recommended. Bungay is well served by a comprehensive range of shops and community facilities. Regular bus services are available too all major local centres including Beccles, Norwich, Great Yarmouth and Lowestoft.

Tenure

Freehold

Accommodation

Ground Floor

Entrance porch, main hall, office and anteroom, staircase leading down to:

Basement

Rear hall, former classroom/meeting room, office, kitchen, cloakroom

Outside

To the front of the property is a parking area for several vehicles. A pathway leads to the side and rear.

Business Rates

The property is decribed as office and storage with an internal area of 98.46 sq/m. Current rateable value £5,100.

Viewing

Open days

Services

Interested parties are requested to make their own enquiries to the relevant authorities as to the availability of services.

Local Authority

Waveney District Council. Tel: 01502 562111

Solicitors

Leathes Prior, 74 The Close, Norwich NR1 4DR, Ref: Miss Cara Keen, Tel: 01603 281151

Important Notice to Prospective Buyers:

We draw your attention to the Special Conditions of Sale within the Legal Pack, referring to other charges in addition to the purchase price which may become payable. Such costs may include Search Fees, reimbursement of Sellers costs and Legal Fees, and Transfer Fees amongst others.

Additional Fees

Administration Charge - 0.3% including VAT subject to a minimum of £840.00 including VAT

Disbursements - Please see the legal pack for any disbursements listed that may become payable by the purchaser on completion.

View Larger Map

Disclaimer: The map preview provided above is for general guidance only and may not accurately reflect the exact location or surrounding buildings. Prospective buyers and interested parties are strongly advised to independently verify the precise location and surroundings before bidding.