Sold Prior | Lot 35

47 & 49 High Street, Leiston, Suffolk, IP16 4EL

Sold Prior

  • Retail Property (high street)
  • Tenure: Freehold

Call the team on 01473 558 888 for more information

Auction Date

Wed 05/12/2018

Auction Time

11:00

Auction Venue

The Sunningdale Suite Dunston Hall Hotel, Ipswich Road, Norwich, NR14 8PQ

Viewing Times:

Thu 22 Nov

12:00-12:45

Tue 27 Nov

10:00-10:45

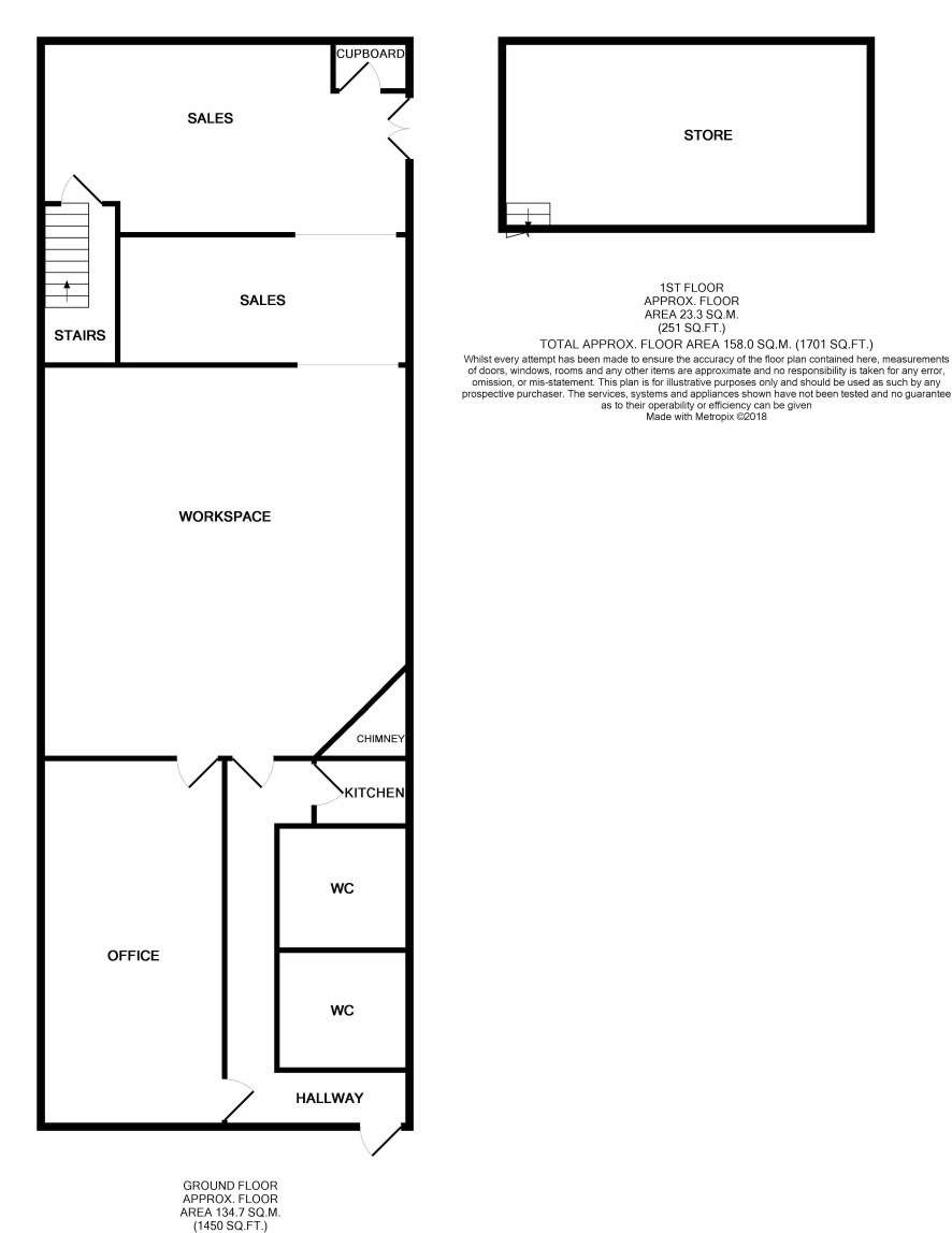
Two neighbouring retail properties, one vacant and one with an established tenant

On the east side of the High Street in the heart of the town’s retail district is this neighbouring pair of retail premises. Leiston is situated some 4 miles from both Saxmundham and Aldeburgh respectively with the A12 just a short distance away which provides road communication to the county town of Ipswich. 47 High Street is a vacant 2 storey end terraced building of around 1450 sq ft with retail areas, store room/office, kitchen & WC facilities and a further first floor store room. Currently it has retail shop use but previously has been utilised as a restaurant and an information centre therefore potentially lending itself to a variety of trades. 49 High Street is a mid-terraced unit of approximately 1160 sq ft again with retail space, stock room, first floor storage, WC and kitchen facilities. It is currently let to Sue Ryder on a 5 year lease from October 2014 at a rent of £6500 per annum. We understand negotiations are underway to establish a new 10 year lease. In our opinion this is an excellent commercial investment competitively priced for the auction market.

Tenure

Freehold

Viewing

Open days

Energy Efficiency Rating (EPC)

Current Rating G, E

Services

Interested parties are requested to make their own enquiries to the relevant authorities as to the availability of services.

Local Authority

Suffolk Coastal District Council

Solicitors

Gotelee Solicitors, 31-41 Elm Street, Ipswich, IP1 2AY, Ref: Annalise Shelcott, Tel: 01473 298168

Important Notice to Prospective Buyers:

We draw your attention to the Special Conditions of Sale within the Legal Pack, referring to other charges in addition to the purchase price which may become payable. Such costs may include Search Fees, reimbursement of Sellers costs and Legal Fees, and Transfer Fees amongst others.

Additional Fees

Administration Charge - 0.3% inc VAT of the purchase price, subject to a minimum of £840 inc VAT, payable on exchange of contracts.

Disbursements - Please see the legal pack for any disbursements listed that may become payable by the purchaser on completion.

View Larger Map

Disclaimer: The map preview provided above is for general guidance only and may not accurately reflect the exact location or surrounding buildings. Prospective buyers and interested parties are strongly advised to independently verify the precise location and surroundings before bidding.