For Sale By Auction | 11:00, 05 December 2018 | Lot 38

Swan Inn, Swan Road, Worlingworth, Woodbridge, Suffolk, IP13 7HZ

Sold After

  • Pub
  • 3 Bedrooms
  • Tenure: Freehold

Call the team on 01473 558 888 for more information

Auction Date

Wed 05/12/2018

Auction Time

11:00

Auction Venue

The Sunningdale Suite Dunston Hall Hotel, Ipswich Road, Norwich, NR14 8PQ

Viewing Times:

Tue 27 Nov

10:30-11:15

Fri 30 Nov

13:00-13:45

Grade II Listed Public House in need of modernisation

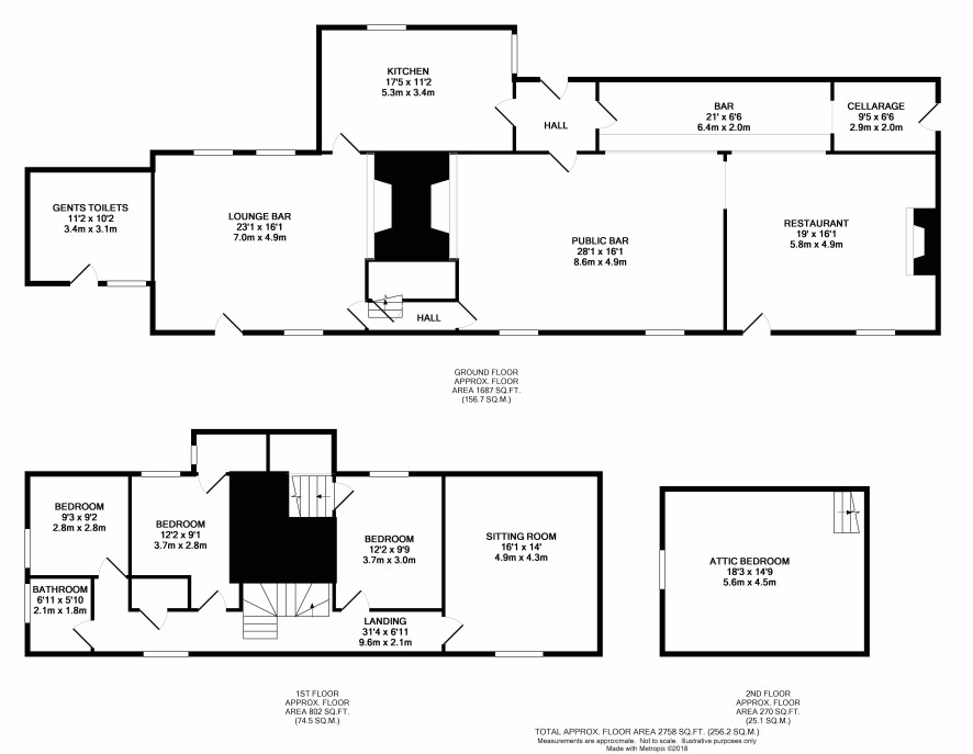
A historic thatched country pub in an idyllic village location now requiring modernisation and refurbishment. The property has a wealth of character features including exposed beams and inglenook fireplaces. The property has three main bar areas and a kitchen on the ground floor whilst on the first floor there is generous owners living accommodation with a further attic room on the second floor. The property is situated in a generous plot which is also in need of attention. Worlingworth is a village approximately 6 miles from Eye and 5 miles from Framlingham.

Tenure

Freehold

Ground Floor

Entrance lobby, lounge bar, public bar, restaurant, bar area, cellarage, kitchen

First Floor

Landing, lounge, three bedrooms, bathroom

Second Floor

Attic room.

Services

Interested parties are requested to make their own enquiries to the relevant authorities as to the availability of services.

Local Authority

Mid Suffolk District Council

Solicitors

Moore Blatch Solicitors, Gateway House, Tollgate, Chandlers Ford, Eastleigh, SO533TG, Ref: Nicole Millard-Sharpe, Tel: 02382025015

Important Notice to Prospective Buyers:

We draw your attention to the Special Conditions of Sale within the Legal Pack, referring to other charges in addition to the purchase price which may become payable. Such costs may include Search Fees, reimbursement of Sellers costs and Legal Fees, and Transfer Fees amongst others.

Additional Fees

Buyer's Premium - £750 inc VAT payable on exchange of contracts.

Administration Charge - 0.3% inc VAT of the purchase price, subject to a minimum of £840 inc VAT, payable on exchange of contracts.

Disbursements - Please see the legal pack for any disbursements listed that may become payable by the purchaser on completion.

View Larger Map

Disclaimer: The map preview provided above is for general guidance only and may not accurately reflect the exact location or surrounding buildings. Prospective buyers and interested parties are strongly advised to independently verify the precise location and surroundings before bidding.