For Sale By Auction | 11:00, 10 April 2019 | Lot 26

Former Flower Pot Inn, London Road, Brandon, Suffolk, IP27 0HY

Sold £134,000

  • Pub
  • Tenure: Freehold

Call the team on 01603 505 100 for more information

Auction Date

Wed 10/04/2019

Auction Time

11:00

Auction Venue

The Sunningdale Suite Dunston Hall Hotel, Ipswich Road, Norwich, NR14 8PQ

Viewing Times:

Thu 21 Mar

11:30-12:00

Thu 28 Mar

11:30-12:00

Thu 4 Apr

11:30-12:00

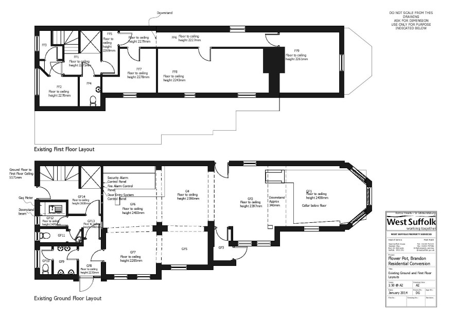
Prominent detached property suitable for a variety of uses. Gross internal area of around 2,173 sq/ft (202 sq m)

The property is a a two storey detached building constructed of traditional brick and flint materials with later brick and block extensions. The building is set under a pitched pantile roof, with modern flat roofed extensions.The property benefits from a platform lift serving the first floor, double glazing and gas fired central heating. Originally a public house, the property has more recently been used as a youth drop in centre and will be sold with vacant possession. The building has a variety of potential uses such as a children{squote}s nursery, restaurant, offices, retail or residential subject to the necessary consents. According to the valuation office website the property is described as a club house and primises and has a rateable value of £4,500 with effect from 1st April 2017.

Tenure

Freehold

Lower Ground Floor

Basement (not inspected)

Ground Floor

Entrance hall, spacious open plan room with toilets and kitchen facilities.

First Floor

Four further rooms with a disabled w.c., store room.

Outside

Secure gated yard area providing off-road parking.Single garage.

Energy Efficiency Rating (EPC)

Current Rating D

Services

Interested parties are requested to make their own enquiries to the relevant authorities as to the availability of services.

Local Authority

Forest Heath District Council

Solicitors

West Suffolk Council, Shared Legal Services, West Suffolk House, Western Way, Bury St Edmunds, IP33 3YU, Ref: Jane Orton, Tel: 01638 719328

Important Notice to Prospective Buyers:

We draw your attention to the Special Conditions of Sale within the Legal Pack, referring to other charges in addition to the purchase price which may become payable. Such costs may include Search Fees, reimbursement of Sellers costs and Legal Fees, and Transfer Fees amongst others.

Additional Fees

Administration Charge - 0.3% inc VAT of the purchase price, subject to a minimum of £900 inc VAT, payable on exchange of contracts.

Disbursements - Please see the legal pack for any disbursements listed that may become payable by the purchaser on completion.

View Larger Map

Disclaimer: The map preview provided above is for general guidance only and may not accurately reflect the exact location or surrounding buildings. Prospective buyers and interested parties are strongly advised to independently verify the precise location and surroundings before bidding.