Withdrawn | Lot 50

5 Hall Place, Spalding, Lincolnshire, PE11 1SA

Withdrawn

  • Shop
  • Tenure: Freehold

Call the team on 01733 889833 for more information

Auction Date

Fri 12/04/2019

Auction Time

12:00

Auction Venue

Caroline Hand Suite Peterborough United Football Ground, ABAX Stadium, London Road, Peterborough, PE2 8AL

Viewing Times:

Thu 21 Mar

13:00-13:30

Thu 28 Mar

13:00-13:30

Thu 4 Apr

13:00-13:30

A terraced retail unit currently occupied by an Opticians business with an income of £27,000 pa.

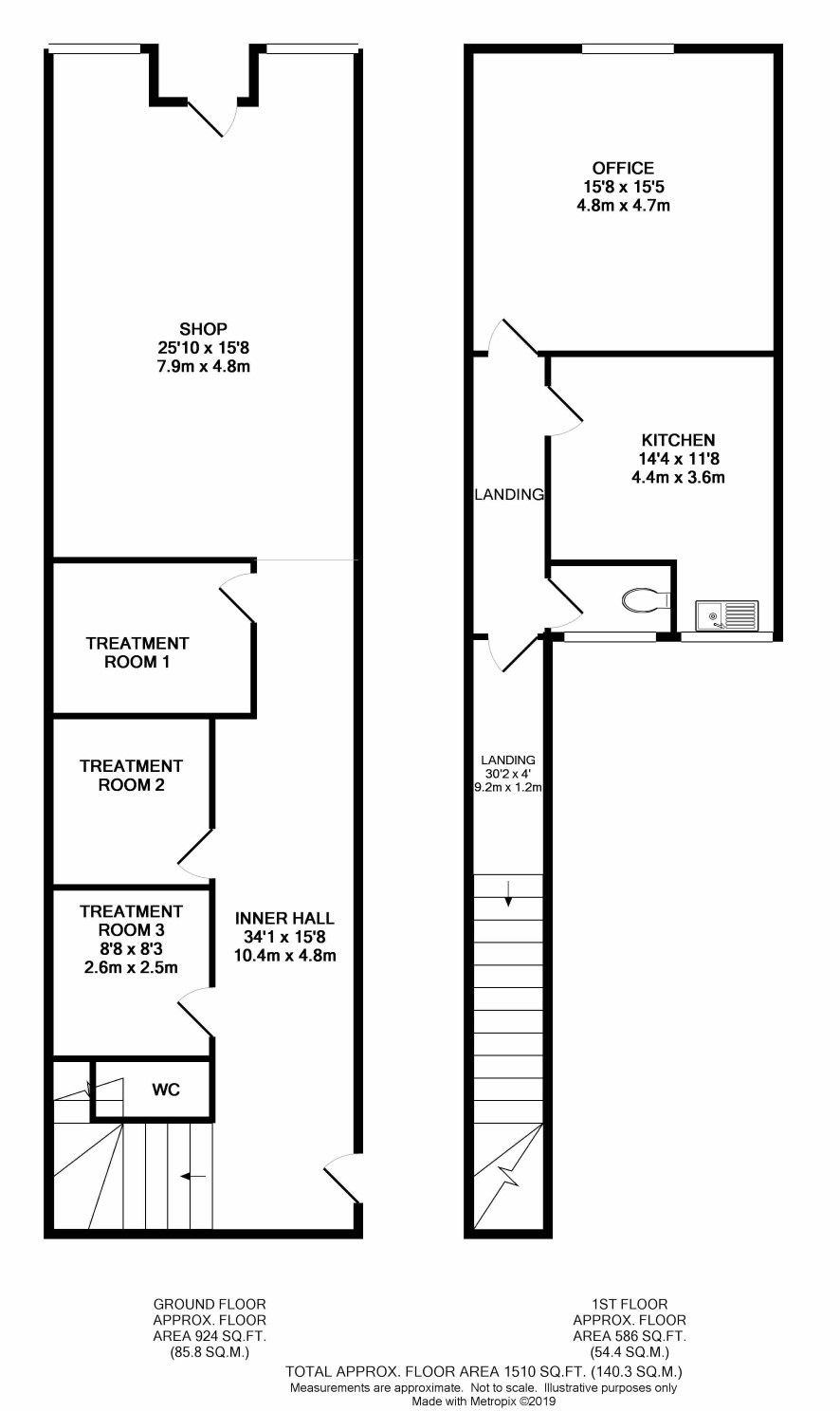
This retail unit in situated in the heart of Spalding in a busy shopping area of the town. The unit is 128.26 square metres and is arranged on two floors. The property has been renovated and improved by the current tenant throughout.

Tenure

Freehold

Ground Floor

Shop area, 3 treatment rooms, w.c.

First Floor

Office, kitchen, w.c.

Business Rates

According to the Valuation Office the property has a rateable value of £24,750

Lease

The current tenant signed a 15 year lease in 2010 (6 years remaining).

Energy Efficiency Rating (EPC)

Current Rating C

Services

Interested parties are requested to make their own enquiries to the relevant authorities as to the availability of services.

Local Authority

South Holland District Council

Solicitors

Mincoffs Solicitors, 5 Osbourne Terrace, Jesmond, Newcastle upon Tyne, NE2 1SQ, Ref: Ryan Bannon, Tel: 0191 281 6151

Important Notice to Prospective Buyers:

We draw your attention to the Special Conditions of Sale within the Legal Pack, referring to other charges in addition to the purchase price which may become payable. Such costs may include Search Fees, reimbursement of Sellers costs and Legal Fees, and Transfer Fees amongst others.

Additional Fees

Buyer's Premium - £1080 inc VAT payable on exchange of contracts.

Administration Charge - 0.3% inc VAT of the purchase price, subject to a minimum of £900 inc VAT, payable on exchange of contracts.

Disbursements - Please see the legal pack for any disbursements listed that may become payable by the purchaser on completion.

View Larger Map

Disclaimer: The map preview provided above is for general guidance only and may not accurately reflect the exact location or surrounding buildings. Prospective buyers and interested parties are strongly advised to independently verify the precise location and surroundings before bidding.