For Sale By Auction | 12:00, 12 April 2019 | Lot 62

13 Gilpin Street, Peterborough, Cambridgeshire, PE1 3BS

Sold £137,500

  • Semi-Detached House
  • 3 Bedrooms
  • Tenure: Freehold

Call the team on 01733 889833 for more information

Auction Date

Fri 12/04/2019

Auction Time

12:00

Auction Venue

Caroline Hand Suite Peterborough United Football Ground, ABAX Stadium, London Road, Peterborough, PE2 8AL

Viewing Times:

Sat 23 Mar

10:00-10:30

Mon 25 Mar

10:00-10:30

Mon 1 Apr

10:00-10:30

A 3 bedroom semi detached house in need of improvement

The property is in need of modernisation and improvement however offers good sized accommodation and would be ideal as an investment property with a potential rental income of £725 pcm (£8,700 pa). Peterborough city centre provides a main line rail link into London Kings Cross.

Tenure

Freehold

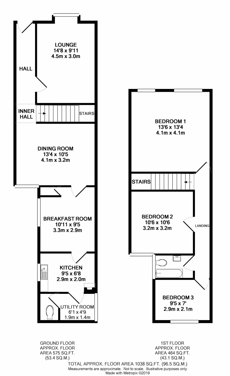
Ground Floor

Hall, lounge, dining room, breakfast room, kitchen, utility room, cloakroom/w.c.

First Floor

3 bedrooms, bathroom

Outside

Garden to rear.

Energy Efficiency Rating (EPC)

Current Rating E

Services

Interested parties are requested to make their own enquiries to the relevant authorities as to the availability of services.

Local Authority

Peterborough City Council

Solicitors

Optima Legal, TBG, Hepworth House, Claypit Lane, Leeds, LS2 8AE, Ref: Conveyancing Department, Tel: 0844 5716524

Important Notice to Prospective Buyers:

We draw your attention to the Special Conditions of Sale within the Legal Pack, referring to other charges in addition to the purchase price which may become payable. Such costs may include Search Fees, reimbursement of Sellers costs and Legal Fees, and Transfer Fees amongst others.

Additional Fees

Buyer's Premium - £1140 inc VAT payable on exchange of contracts.

Administration Charge - 0.3% inc VAT of the purchase price, subject to a minimum of £900 inc VAT, payable on exchange of contracts.

Disbursements - Please see the legal pack for any disbursements listed that may become payable by the purchaser on completion.

View Larger Map

Disclaimer: The map preview provided above is for general guidance only and may not accurately reflect the exact location or surrounding buildings. Prospective buyers and interested parties are strongly advised to independently verify the precise location and surroundings before bidding.