For Sale By Auction | 11:00, 10 April 2019 | Lot 24

Apartment 9, East Hall, Lodge Road, Feltwell, Thetford, Norfolk, IP26 4DP

Sold £119,000

  • Flat
  • 3 Bedrooms
  • Tenure: Leasehold. 999 years from 01.01.2002. Ground Rent £25.00pa

Call the team on 01603 505 100 for more information

Auction Date

Wed 10/04/2019

Auction Time

11:00

Auction Venue

The Sunningdale Suite Dunston Hall Hotel, Ipswich Road, Norwich, NR14 8PQ

Viewing Times:

Thu 21 Mar

09:30-10:00

Thu 28 Mar

09:30-10:00

Fri 5 Apr

09:30-10:00

A substantial three bedroom apartment currently let producing £11,400pa (£950pcm)

This excellently proportioned apartment offers accommodation split over three levels and includes three double bedrooms, a generous reception room and a fitted kitchen. The property is in an impressive building, which has been tastefully converted into multiple units, each with residents parking and maintained, attractive communal gardens. This is a productive investment property which produces a strong rental yield and is therefore ideal for the experienced or first time investor.

Tenure

Leasehold. 999 years from 01.01.2002. Ground Rent £25.00pa

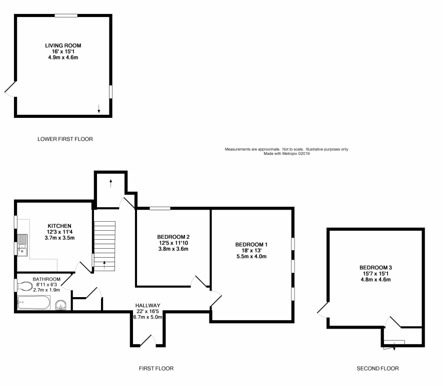
Lower First Floor

Living room.

First Floor

Hall, kitchen, two bedrooms, bathroom.

Second Floor

Bedroom three.

Outside

Communal maintained gardens, residents parking

Energy Efficiency Rating (EPC)

Current Rating F

Services

Interested parties are requested to make their own enquiries to the relevant authorities as to the availability of services.

Solicitors

Butterworths, 3 Walker Terrace, Gateshead, NE8 1EB, Ref: Rebekah West, Tel: 0191 482 1152

Important Notice to Prospective Buyers:

We draw your attention to the Special Conditions of Sale within the Legal Pack, referring to other charges in addition to the purchase price which may become payable. Such costs may include Search Fees, reimbursement of Sellers costs and Legal Fees, and Transfer Fees amongst others.

Additional Fees

Buyer's Premium - £2200 inc VAT payable on exchange of contracts.

Administration Charge - £1200 inc VAT payable on exchange of contracts.

Disbursements - Please see the legal pack for any disbursements listed that may become payable by the purchaser on completion.

View Larger Map

Disclaimer: The map preview provided above is for general guidance only and may not accurately reflect the exact location or surrounding buildings. Prospective buyers and interested parties are strongly advised to independently verify the precise location and surroundings before bidding.