For Sale By Auction | 11:00, 17 July 2019 | Lot 4

72 St Benedicts Street, Norwich, Norfolk, NR2 4AR

Sold After

  • Mixed Use
  • 2 Bedrooms
  • Tenure: Freehold

Call the team on 01603 505 100 for more information

Auction Date

Wed 17/07/2019

Auction Time

11:00

Auction Venue

The Sunningdale Suite Dunston Hall Hotel, Ipswich Road, Norwich, NR14 8PQ

Viewing Times:

Tue 25 Jun

11:30-12:00

Tue 2 Jul

11:30-12:00

Tue 9 Jul

11:30-12:00

Thu 11 Jul

09:00-09:30

Tue 16 Jul

13:00-13:30

Sat 20 Jul

10:00-10:30

Tue 23 Jul

11:00-11:30

Historic grade ll listed city centre freehold property

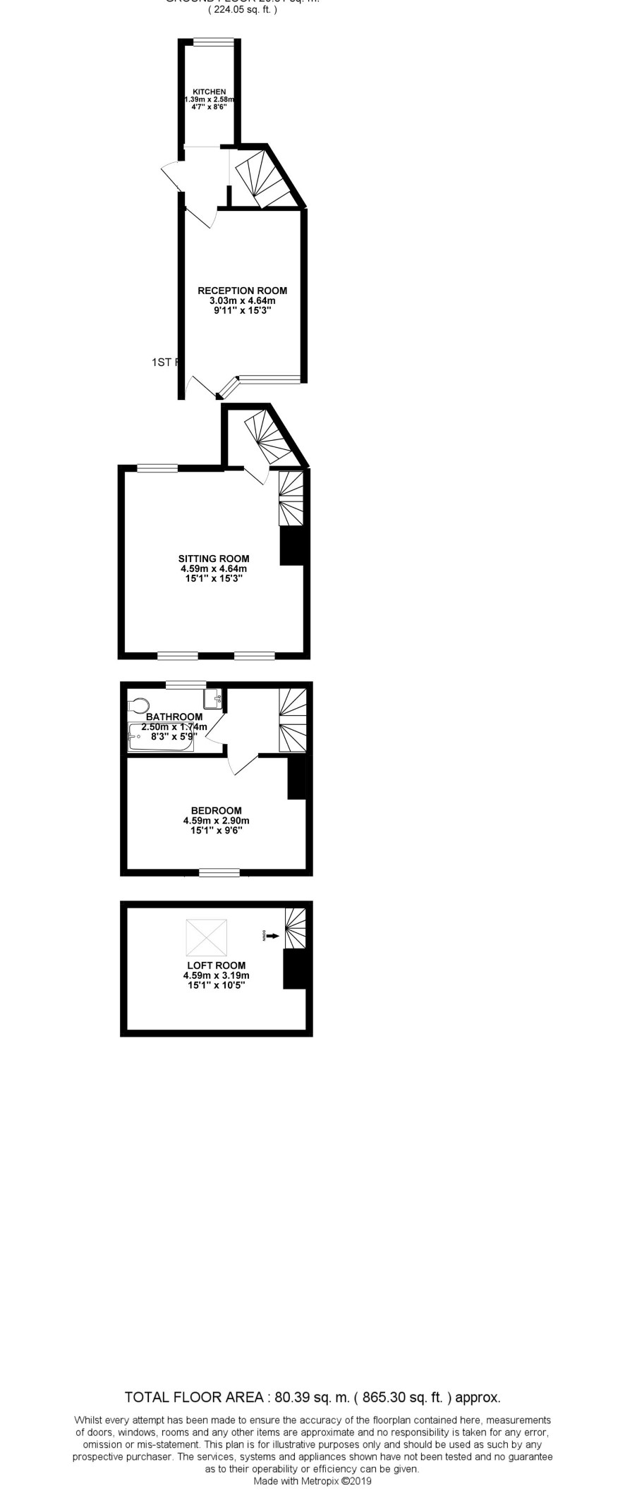
This former shop and apartment has accommodation over 4 levels including 2 bedrooms and first floor lounge. The property has numerous character features including exposed beams and stripped floors. Some updating is now required although the property has gas-fired central heating. This is an ideal property for owner-occupier or investor. There are numerous independent shops, restaurants and cultural amenities nearby.

Tenure

Freehold

Ground Floor

Studio (former shop), rear lobby, kitchen

First Floor

Landing, lounge

Second Floor

Landing, double bedroom, bathroom

Third Floor

Attic room

Outside

Small covered patio area

Services

Interested parties are requested to make their own enquiries to the relevant authorities as to the availability of services.

Local Authority

Norwich City Council

Solicitors

Butcher Andrews, 1 Old Post Office Street, Fakenham, NR21 9BL, Ref: Tracey Yardley, Tel: 01328 852808

Important Notice to Prospective Buyers:

We draw your attention to the Special Conditions of Sale within the Legal Pack, referring to other charges in addition to the purchase price which may become payable. Such costs may include Search Fees, reimbursement of Sellers costs and Legal Fees, and Transfer Fees amongst others.

Additional Fees

Administration Charge - 0.3% inc VAT of the purchase price, subject to a minimum of £900 inc VAT, payable on exchange of contracts.

Disbursements - Please see the legal pack for any disbursements listed that may become payable by the purchaser on completion.

View Larger Map

Disclaimer: The map preview provided above is for general guidance only and may not accurately reflect the exact location or surrounding buildings. Prospective buyers and interested parties are strongly advised to independently verify the precise location and surroundings before bidding.