Withdrawn | Lot 24a

Apartment 9, East Hall, Lodge Road, Feltwell, Thetford, Norfolk, IP26 4DP

Withdrawn

  • Flat
  • 3 Bedrooms
  • Tenure: Leasehold. 999 years from 01.01.2002. Ground Rent £25.00pa

Call the team on 01603 505 100 for more information

Auction Date

Wed 17/07/2019

Auction Time

11:00

Auction Venue

The Sunningdale Suite Dunston Hall Hotel, Ipswich Road, Norwich, NR14 8PQ

A substantial three bedroom apartment currently let producing £11,400pa (£950pcm)

This excellently proportioned apartment offers accommodation split over three levels and includes three double bedrooms, a generous reception room and a fitted kitchen. The property is in an impressive building, which has been tastefully converted into multiple units, each with residents parking and maintained, attractive communal gardens. This is a productive investment property which produces a strong rental yield and is therefore ideal for the experienced or first time investor.

Tenure

Leasehold. 999 years from 01.01.2002. Ground Rent £25.00pa

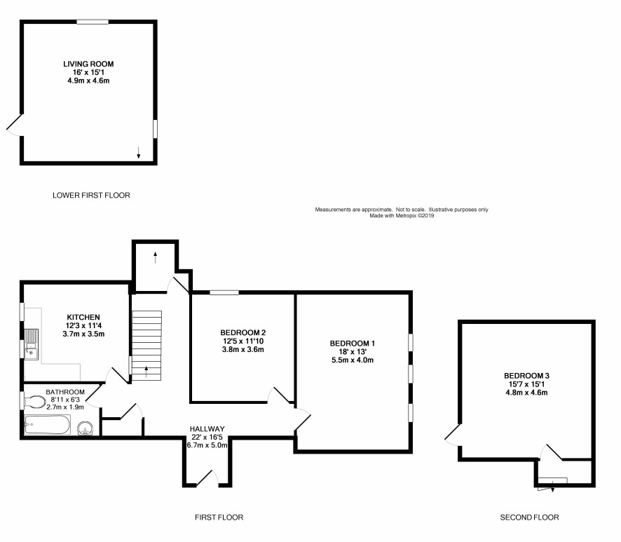
Lower First Floor

Living room.

First Floor

Hall, kitchen, two bedrooms, bathroom.

Second Floor

Bedroom three.

Outside

Communal maintained gardens, residents parking

Viewing

Please call the Auctioneer - 01603 505100.

Energy Efficiency Rating (EPC)

Current Rating F

Services

Interested parties are requested to make their own enquiries to the relevant authorities as to the availability of services.

Local Authority

Breckland Council

Solicitors

Leathes Prior, 74 The Close, Norwich, NR1 4DR, Ref: Stephen Wilson, Tel: 01603 281012

Important Notice to Prospective Buyers:

We draw your attention to the Special Conditions of Sale within the Legal Pack, referring to other charges in addition to the purchase price which may become payable. Such costs may include Search Fees, reimbursement of Sellers costs and Legal Fees, and Transfer Fees amongst others.

Additional Fees

Administration Charge - 0.3% inc VAT of the purchase price, subject to a minimum of £900 inc VAT, payable on exchange of contracts.

Disbursements - Please see the legal pack for any disbursements listed that may become payable by the purchaser on completion.

View Larger Map

Disclaimer: The map preview provided above is for general guidance only and may not accurately reflect the exact location or surrounding buildings. Prospective buyers and interested parties are strongly advised to independently verify the precise location and surroundings before bidding.