For Sale By Auction | 12:00, 13 September 2019 | Lot 60

1 Crown Street, Peterborough, Cambridgeshire, PE1 3HX

Sold After

  • End of Terrace House
  • 3 Bedrooms
  • Tenure: Freehold

Call the team on 01733 889833 for more information

Auction Date

Fri 13/09/2019

Auction Time

12:00

Auction Venue

The Great Barn Knights Hill Hotel and Spa, South Wootton, Kings Lynn, PE30 3HQ

Viewing Times:

Thu 29 Aug

09:45-10:15

Thu 5 Sep

09:45-10:15

An end terrace 3 bedroom house with a tenant providing an income of £7,320 pa.

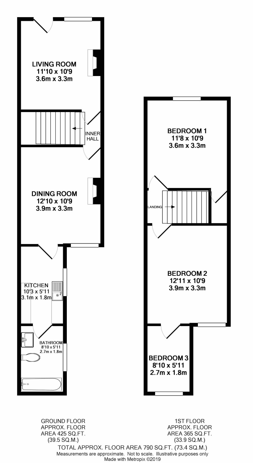
This 3 bedroom end terrace house has a tenant providing an income of £7,320 pa (£610 pcm). The property has two reception rooms, a kitchen and a bathroom on the ground floor with three bedrooms on the first floor. Outside a garden can be found at the rear. Peterborough offers a wealth of shopping and recreational facilities with a main line rail link into London Kings Cross located in the city.

Tenure

Freehold

Ground Floor

Lounge, dining room, kitchen, bathroom

First Floor

Three bedrooms

Outside.

Garden to the rear.

Energy Efficiency Rating (EPC)

Current Rating E

Services

Interested parties are requested to make their own enquiries to the relevant authorities as to the availability of services.

Local Authority

Peterborough City Council

Solicitors

Terrells Solicitors, 61 Lincoln Road, Peterborough, PE1 2SE, Ref: Mr R Terrell, Tel: 01733 896789

Important Notice to Prospective Buyers:

We draw your attention to the Special Conditions of Sale within the Legal Pack, referring to other charges in addition to the purchase price which may become payable. Such costs may include Search Fees, reimbursement of Sellers costs and Legal Fees, and Transfer Fees amongst others.

Additional Fees

Administration Charge - 0.3% inc VAT of the purchase price, subject to a minimum of £900 inc VAT, payable on exchange of contracts.

Disbursements - Please see the legal pack for any disbursements listed that may become payable by the purchaser on completion.

View Larger Map

Disclaimer: The map preview provided above is for general guidance only and may not accurately reflect the exact location or surrounding buildings. Prospective buyers and interested parties are strongly advised to independently verify the precise location and surroundings before bidding.