Postponed | Lot 44

Brambledown, Stoke Road, Thorndon, Eye, Suffolk, IP23 7JG

Postponed

  • Barn
  • 3 Bedrooms
  • Tenure: Freehold

Call the team on 01473 558 888 for more information

Auction Date

Thu 12/09/2019

Auction Time

14:00

Auction Venue

The Wolsey Room Holiday Inn, London Road, Ipswich, IP2 0UA

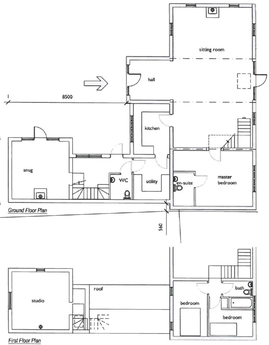
A most attractive converted barn in app. 1 acre

Set well back from the road in the heart of this desirable west Suffolk village is this highly individual converted barn offering a wealth of character. Thorndon is served by a primary school, community shop, a public house and is situated some 3 miles from the town of Eye and easily accessible from the A140 Ipswich to Norwich road. The conversion is around 90% complete and offers versatile accommodation including a self contained section which can be utilised as an annexe or potentially holiday lets. The property stands in around 1 acre and is approached by a long drive with a meadow to one side offering potential for a Planning gain, prospective purchasers are advised to make their own enquiries to Mid Suffolk District Council in this respect. Within the grounds is a useful block built outbuilding with power connected, a double cart shed and a good size partially walled garden to one side. A tremendous opportunity which shouldn't be missed and we strongly advise attending one of the scheduled Open Viewings.

Tenure

Freehold

Energy Efficiency Rating (EPC)

Current Rating D

Services

Interested parties are requested to make their own enquiries to the relevant authorities as to the availability of services.

Local Authority

Mid Suffolk District Council

Solicitors

Selig Partners, 7a Wellington Road, London, NW10 5LJ, Ref: Nikki Shamash, Tel: 0203 432 7180

Important Notice to Prospective Buyers:

We draw your attention to the Special Conditions of Sale within the Legal Pack, referring to other charges in addition to the purchase price which may become payable. Such costs may include Search Fees, reimbursement of Sellers costs and Legal Fees, and Transfer Fees amongst others.

Additional Fees

Administration Charge - 0.3% inc VAT of the purchase price, subject to a minimum of £900 inc VAT, payable on exchange of contracts.

Disbursements - Please see the legal pack for any disbursements listed that may become payable by the purchaser on completion.

View Larger Map

Disclaimer: The map preview provided above is for general guidance only and may not accurately reflect the exact location or surrounding buildings. Prospective buyers and interested parties are strongly advised to independently verify the precise location and surroundings before bidding.