Withdrawn | Lot 33

280 Southtown Road, Great Yarmouth, Norfolk, NR31 0JB

Withdrawn

  • Terraced House
  • 4 Bedrooms
  • Tenure: Freehold

Call the team on 01603 505 100 for more information

Auction Date

Wed 11/09/2019

Auction Time

11:00

Auction Venue

The Sunningdale Suite Dunston Hall Hotel, Ipswich Road, Norwich, NR14 8PQ

Viewing Times:

Thu 22 Aug

14:15-14:45

Thu 29 Aug

14:15-14:45

Thu 5 Sep

14:15-14:45

Four bedroom terrace house in good decorative order

This is a newly renovated, spacious, hall entrance, bay fronted, four bedroom mid terrace house. The property benefits from high ceilings, gas central heating and sealed unit double glazing. The property is located less than a mile from the town centre close to a range of services and amenities. This would suit an owner occupier, first time buyer or investor.

Tenure

Freehold

Description:

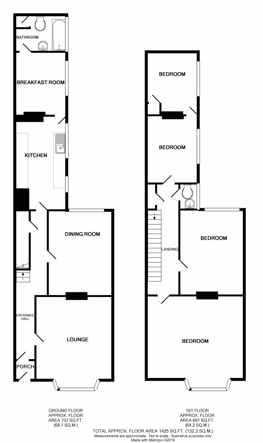
Ground floor: porch, entrance hall, lounge, dining room, kitchen, breakfast room, bathroom

First floor: landing, four bedrooms, wc

Outside: front and rear garden, off road parking to front

Energy Efficiency Rating (EPC)

Current Rating D

Services

Interested parties are requested to make their own enquiries to the relevant authorities as to the availability of services.

Local Authority

Great Yarmouth Borough Council

Solicitors

Property Law Partners, Property Law Partners, 1 Crown Square, Woking, Surrey, GU21 6HR, Ref: Tracy Alabaster, Tel: (01483) 768629

Important Notice to Prospective Buyers:

We draw your attention to the Special Conditions of Sale within the Legal Pack, referring to other charges in addition to the purchase price which may become payable. Such costs may include Search Fees, reimbursement of Sellers costs and Legal Fees, and Transfer Fees amongst others.

Additional Fees

Administration Charge - 0.3% inc VAT of the purchase price, subject to a minimum of £900 inc VAT, payable on exchange of contracts.

Disbursements - Please see the legal pack for any disbursements listed that may become payable by the purchaser on completion.

View Larger Map

Disclaimer: The map preview provided above is for general guidance only and may not accurately reflect the exact location or surrounding buildings. Prospective buyers and interested parties are strongly advised to independently verify the precise location and surroundings before bidding.