For Sale By Auction | 11:00, 11 September 2019 | Lot 5

144 Bull Close Road, Norwich, Norfolk, NR3 1NZ

Sold £147,000

  • Terraced House
  • 3 Bedrooms
  • Tenure: Freehold

Call the team on 01603 505 100 for more information

Auction Date

Wed 11/09/2019

Auction Time

11:00

Auction Venue

The Sunningdale Suite Dunston Hall Hotel, Ipswich Road, Norwich, NR14 8PQ

Viewing Times:

Tue 20 Aug

12:30-13:00

Tue 27 Aug

12:30-13:00

Fri 30 Aug

15:00-15:30

Tue 3 Sep

12:30-13:00

Fri 6 Sep

13:45-14:15

Terrace house in good decorative order

This two / three bedroom over the passage mid terrace house has been let for a number of years and is now to be sold with vacant possession. The property is double glazed and benefits from gas central heating and spacious master bedroom. The property is in good decorative order and has a modern kitchen and bathroom. It is conveniently located a short distance from the inner link road and the city centre. An ideal purchase for the owner-occupier or investor.

Tenure

Freehold

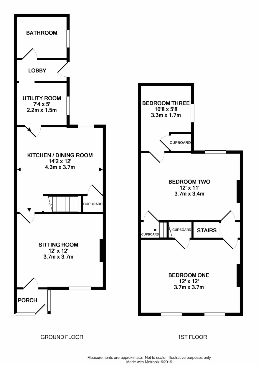
Ground Floor

Entrance porch, sitting room, kitchen, utility room, bathroom.

First Floor

Three bedrooms.

Outside

Detached outbuilding to the rear, rear garden / yard, small front gravel garden.

Energy Efficiency Rating (EPC)

Current Rating D

Services

Interested parties are requested to make their own enquiries to the relevant authorities as to the availability of services.

Local Authority

Norwich City Council

Solicitors

nplaw, Norfolk County Council, County Hall, Norwich, NR1 2DH, Ref: Mr P. Hensby, Tel: 01603 228879

Important Notice to Prospective Buyers:

We draw your attention to the Special Conditions of Sale within the Legal Pack, referring to other charges in addition to the purchase price which may become payable. Such costs may include Search Fees, reimbursement of Sellers costs and Legal Fees, and Transfer Fees amongst others.

Additional Fees

Buyer's Premium - £540 inc VAT payable on exchange of contracts.

Administration Charge - 0.3% inc VAT of the purchase price, subject to a minimum of £900 inc VAT, payable on exchange of contracts.

Disbursements - Please see the legal pack for any disbursements listed that may become payable by the purchaser on completion.

View Larger Map

Disclaimer: The map preview provided above is for general guidance only and may not accurately reflect the exact location or surrounding buildings. Prospective buyers and interested parties are strongly advised to independently verify the precise location and surroundings before bidding.