Sold Prior | Lot 23

97B Magdalen Way, Gorleston, Great Yarmouth, Norfolk, NR31 7AA

Sold Prior

  • Flat
  • 1 Bedroom
  • Tenure: Leasehold. 999 years from 3rd November 1983. Peppercorn ground rent. Service charge £79 pcm.

Call the team on 01603 505 100 for more information

Auction Date

Wed 11/09/2019

Auction Time

11:00

Auction Venue

The Sunningdale Suite Dunston Hall Hotel, Ipswich Road, Norwich, NR14 8PQ

Viewing Times:

Thu 22 Aug

13:30-14:00

Thu 29 Aug

13:30-14:00

Thu 5 Sep

13:30-14:00

Partially updated purpose built first floor flat ideal for investment or first purchase

A spacious one bedroom apartment ideal for investment purposes. The property is currently vacant and benefits from gas central heating, sealed unit double glazing and a small but secure courtyard garden. Recent improvements include a new white gloss kitchen fitted by Howdens under guarantee, new vinyl flooring to kitchen and brand new bathroom fitted by Jewsons under guarantee. The property is situated to the rear of a parade of shops and within close proximity of a range of other amenities including schools and public transport.

Tenure

Leasehold. 999 years from 3rd November 1983. Peppercorn ground rent. Service charge £79 pcm.

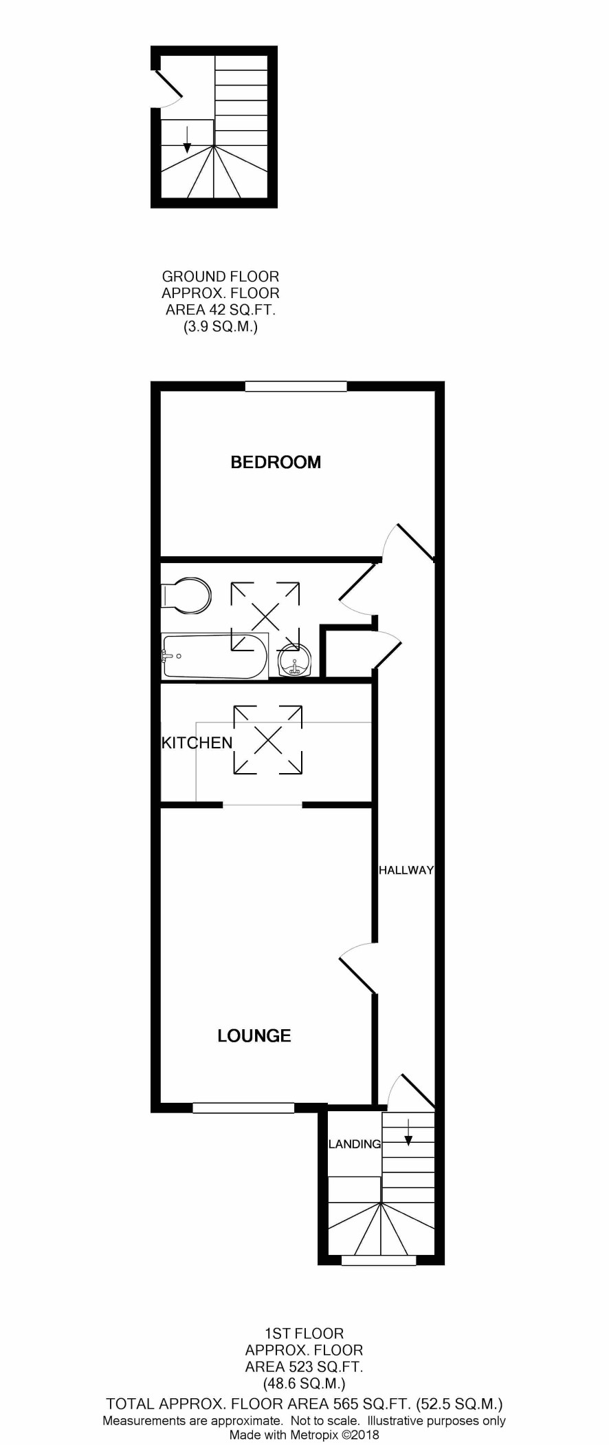
Ground Floor

Private entrance lobby with staircase to First Floor accommodation

First Floor

Hall, lounge, kitchen, double bedroom, bathroom

Outside

Small enclosed courtyard garden.

Lease details

999 years from 3rd November 1983. Peppercorn ground rent. Service charge £79 pcm.

Energy Efficiency Rating (EPC)

Current Rating E

Services

Interested parties are requested to make their own enquiries to the relevant authorities as to the availability of services.

Local Authority

Great Yarmouth Borough Council

Solicitors

PDR Property Lawyers, 5 Market Street, Whittlesey, Peterborough, PE7 1BA, Ref: Grace Newell, Tel: 01733 203873

Important Notice to Prospective Buyers:

We draw your attention to the Special Conditions of Sale within the Legal Pack, referring to other charges in addition to the purchase price which may become payable. Such costs may include Search Fees, reimbursement of Sellers costs and Legal Fees, and Transfer Fees amongst others.

Additional Fees

Administration Charge - 0.3% inc VAT of the purchase price, subject to a minimum of £900 inc VAT, payable on exchange of contracts.

Disbursements - Please see the legal pack for any disbursements listed that may become payable by the purchaser on completion.

View Larger Map

Disclaimer: The map preview provided above is for general guidance only and may not accurately reflect the exact location or surrounding buildings. Prospective buyers and interested parties are strongly advised to independently verify the precise location and surroundings before bidding.