For Sale By Auction | 11:00, 23 October 2019 | Lot 23

Rosewood, Sheringwood, Beeston Regis, Sheringham, Norfolk, NR26 8TS

Sold £352,000

  • Bungalow
  • 3 Bedrooms
  • Tenure: Freehold

Call the team on 01603 505 100 for more information

Auction Date

Wed 23/10/2019

Auction Time

11:00

Auction Venue

The Sunningdale Suite Dunston Hall Hotel, Ipswich Road, Norwich, NR14 8PQ

Viewing Times:

Wed 2 Oct

09:30-10:00

Wed 9 Oct

09:30-10:00

Wed 16 Oct

09:30-10:00

Three bedroom detached bungalow set in over an acre. Planning permission for replacement dwelling.

A rare opportunity to acquire a property located up a long drive in grounds of 1.15 acres (sts). This is an opportunity to refurbish the existing property or demolish and build a ’Grand Designs’ style dwelling. The existing property has oil fired central heating and is partly double glazed. It is situated in a highly desirable location just off the coast, around a mile from Sheringham, Sheringwood consists of a small selection of individual private properties mostly on large plots surrounded by woodland and glorious rolling countryside. Planning Outline planning permission was granted for a replacement dwelling on 21st June 2019 under application number PO/19/0711. Details can be found on the public access planning site of North Norfolk District Council www.north-norfolk.gov.uk/planning.

Tenure

Freehold

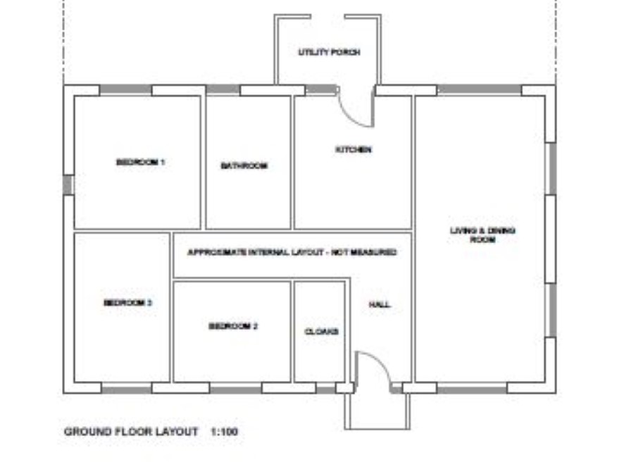
Existing Bunglalow Descripion:

Accommodation: Entrance hall, sitting room, wc, kitchen, three bedrooms, bathroom.

Outside

Extensive grounds including front, side and rear garden, off road parking

Energy Efficiency Rating (EPC)

Current Rating D

Services

Interested parties are requested to make their own enquiries to the relevant authorities as to the availability of services.

Local Authority

North Norfolk District Council

Solicitors

Hayes and Storr, Burnham House, 57-63 Station Road, Sheringham, NR26 8RG, Ref: Jeremy Elliott, Tel: 01263 223044

Important Notice to Prospective Buyers:

We draw your attention to the Special Conditions of Sale within the Legal Pack, referring to other charges in addition to the purchase price which may become payable. Such costs may include Search Fees, reimbursement of Sellers costs and Legal Fees, and Transfer Fees amongst others.

Additional Fees

Administration Charge - 0.3% inc VAT of the purchase price, subject to a minimum of £900 inc VAT, payable on exchange of contracts.

Disbursements - Please see the legal pack for any disbursements listed that may become payable by the purchaser on completion.

View Larger Map

Disclaimer: The map preview provided above is for general guidance only and may not accurately reflect the exact location or surrounding buildings. Prospective buyers and interested parties are strongly advised to independently verify the precise location and surroundings before bidding.