For Sale By Auction | 12:00, 25 October 2019 | Lot 46

1 Alma Road, Peterborough, Cambridgeshire, PE1 3AN

Sold £99,000

  • Semi-Detached House
  • 2 Bedrooms
  • Tenure: Freehold

Call the team on 01733 889833 for more information

Auction Date

Fri 25/10/2019

Auction Time

12:00

Auction Venue

Caroline Hand Suite Peterborough United Football Ground, ABAX Stadium, London Road, Peterborough, PE2 8AL

Viewing Times:

Thu 10 Oct

16:00-16:30

Thu 17 Oct

16:00-16:30

A semi detached two bedroom house with a tenant on an Assured Shorthold Tenancy providing an income of £6,480 pa.

This two bedroom semi detached house has a tenant on an assured shorthold tenancy providing an income of £6,480 pa (£540 pcm). The property offers two reception rooms and a kitchen on the ground floor with two bedrooms and a bathroom on the first floor. Outside to the rear there is a garden. Peterborough offers shopping and recreational facilities with a main line rail link into London Kings Cross.

Tenure

Freehold

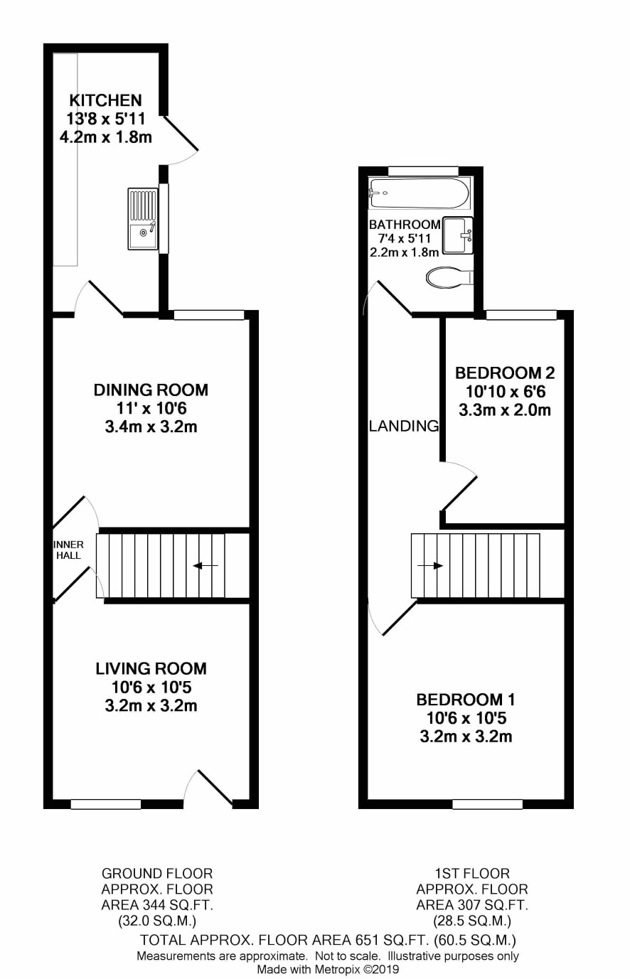
Ground Floor

Lounge, dining room, kitchen

First Floor

Two bedrooms, bathroom

Outside.

Garden at rear.

Energy Efficiency Rating (EPC)

Current Rating E

Services

Interested parties are requested to make their own enquiries to the relevant authorities as to the availability of services.

Local Authority

Peterborough City Council

Solicitors

Terrells Solicitors, 61 Lincoln Road, Peterborough, PE1 2SE, Ref: Mr R Terrell, Tel: 01733 896789

Important Notice to Prospective Buyers:

We draw your attention to the Special Conditions of Sale within the Legal Pack, referring to other charges in addition to the purchase price which may become payable. Such costs may include Search Fees, reimbursement of Sellers costs and Legal Fees, and Transfer Fees amongst others.

Additional Fees

Administration Charge - 0.3% inc VAT of the purchase price, subject to a minimum of £900 inc VAT, payable on exchange of contracts.

Disbursements - Please see the legal pack for any disbursements listed that may become payable by the purchaser on completion.

View Larger Map

Disclaimer: The map preview provided above is for general guidance only and may not accurately reflect the exact location or surrounding buildings. Prospective buyers and interested parties are strongly advised to independently verify the precise location and surroundings before bidding.