For Sale By Auction | 14:00, 24 October 2019 | Lot 37

271 Spring Road, Ipswich, Suffolk, IP4 5ND

Sold £150,000

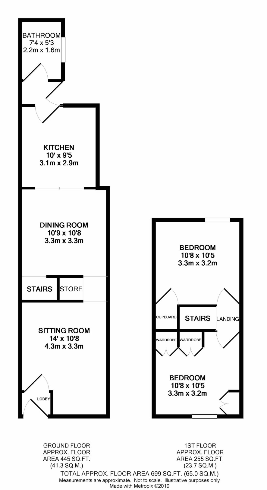
  • Terraced House
  • 2 Bedrooms
  • Tenure: Freehold

Call the team on 01473 558 888 for more information

Auction Date

Thu 24/10/2019

Auction Time

14:00

Auction Venue

The Wolsey Room Holiday Inn, London Road, Ipswich, IP2 0UA

Viewing Times:

Fri 4 Oct

11:00-11:30

A ready made investment in a sought after east Ipswich location

Conveniently located for easy access to Ipswich Hospital and BT Martlesham is this Victorian terraced house which can be found in good order throughout and has recently benefitted from new laminate vinyl flooring to the ground floor. The property offers 2 bedroom accommodation including a fitted kitchen, gas central heating, double glazing and is currently let on a 6 month AST at a rent of £725 per calendar month and to an established tenant of the current managing agent. In our opinion this is a solid investment opportunity which would grace any rental portfolio.

Tenure

Freehold

Energy Efficiency Rating (EPC)

Current Rating D

Services

Interested parties are requested to make their own enquiries to the relevant authorities as to the availability of services.

Local Authority

Ipswich Borough Council

Solicitors

Hayward Moon, Connexions, 159 Princes Street, Ipswich, IP1 1QJ, Ref: Mark Lomas, Tel: 01473 234730

Important Notice to Prospective Buyers:

We draw your attention to the Special Conditions of Sale within the Legal Pack, referring to other charges in addition to the purchase price which may become payable. Such costs may include Search Fees, reimbursement of Sellers costs and Legal Fees, and Transfer Fees amongst others.

Additional Fees

Buyer's Premium - £900 inc VAT payable on exchange of contracts.

Administration Charge - 0.3% inc VAT of the purchase price, subject to a minimum of £900 inc VAT, payable on exchange of contracts.

Disbursements - Please see the legal pack for any disbursements listed that may become payable by the purchaser on completion.

View Larger Map

Disclaimer: The map preview provided above is for general guidance only and may not accurately reflect the exact location or surrounding buildings. Prospective buyers and interested parties are strongly advised to independently verify the precise location and surroundings before bidding.