Withdrawn | Lot 50

26 Old School Lane, Milton, Cambridge, Cambridgeshire, CB24 6BS

Withdrawn

  • Detached Bungalow
  • 3 Bedrooms
  • Tenure: Freehold

Call the team on 01733 889833 for more information

Auction Date

Fri 25/10/2019

Auction Time

12:00

Auction Venue

Caroline Hand Suite Peterborough United Football Ground, ABAX Stadium, London Road, Peterborough, PE2 8AL

Viewing Times:

Mon 7 Oct

14:30-15:00

Tue 15 Oct

10:00-10:30

Fri 18 Oct

10:00-10:30

A detached three bedroom spacious bungalow offered with vacant possession

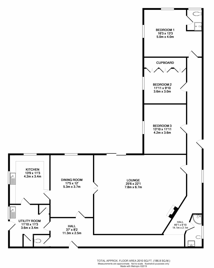
This individual three bedroom detached bungalow is in a secluded location situated in a private drive. The property offers two reception rooms, kitchen with oven microwave and hob, utility room, with three double bedrooms one with en-suite and a family bathroom. Outside provides gardens and a double garage. Milton is located north of Cambridge and has shopping and recreational facilities with a rail link located at Chesterton Cambridge North and Cambridge City providing a rail link into and London Kings Cross and Liverpool Street stations.

Tenure

Freehold

Ground Floor

Hall, lounge, dining room, kitchen, utility room, cloakroom/w.c., master bedroom with en-suite, two further bedrooms, family bathroom

Outside

Private drive with access to a detached double garage. Secluded gardens to rear.

Energy Efficiency Rating (EPC)

Current Rating D

Services

Interested parties are requested to make their own enquiries to the relevant authorities as to the availability of services.

Local Authority

South Cambridgeshire District Council

Solicitors

Thomson Webb & Corfield, 16 Union Road, Cambridge, CB2 1HE, Ref: Francesca Moroz, Tel: 01223 578070

Important Notice to Prospective Buyers:

We draw your attention to the Special Conditions of Sale within the Legal Pack, referring to other charges in addition to the purchase price which may become payable. Such costs may include Search Fees, reimbursement of Sellers costs and Legal Fees, and Transfer Fees amongst others.

Additional Fees

Administration Charge - 0.3% inc VAT of the purchase price, subject to a minimum of £900 inc VAT, payable on exchange of contracts.

Disbursements - Please see the legal pack for any disbursements listed that may become payable by the purchaser on completion.

View Larger Map

Disclaimer: The map preview provided above is for general guidance only and may not accurately reflect the exact location or surrounding buildings. Prospective buyers and interested parties are strongly advised to independently verify the precise location and surroundings before bidding.