Withdrawn | Lot 15

33 New Market, Beccles, Suffolk, NR34 9HE

Withdrawn

  • Mixed Use
  • Tenure: Freehold

Call the team on 01603 505 100 for more information

Auction Date

Wed 23/10/2019

Auction Time

11:00

Auction Venue

The Sunningdale Suite Dunston Hall Hotel, Ipswich Road, Norwich, NR14 8PQ

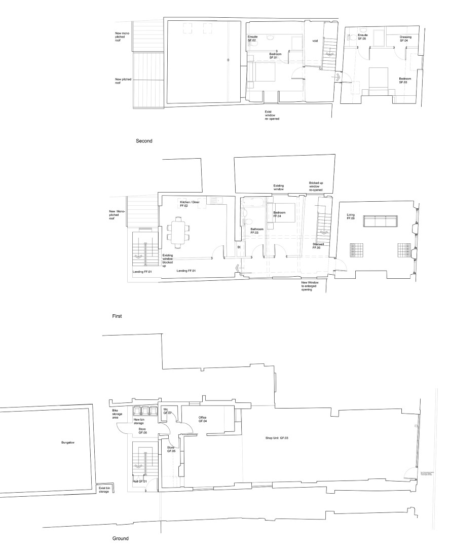
Vacant town centre shop and upper floors with consent for residential conversion

A Grade ll listed building located at the heart of the busy market town of Beccles. The building used to trade for many years as a pet food and garden centre but following a fire in 2015 the property has been unoccupied. The property has, however, since been re-roofed and consent has been gained for the conversion of the upper two floors into a three bedroom duplex apartment. The upper floors have been stripped ready for conversion and have plans drawn up for accommodation that would include 3 bedrooms (2 en-suite), lounge, kitchen, family bathroom and an external staircase providing self contained access to the rear of the building. There is potential to create a highly productive investment property or purchasers might consider refurbishment and future resale of the shop and flat.

Tenure

Freehold

Planning

Full planning permission was granted on 30th June 2017 (reference DC/17/1855/FUL with alterations approved 12th September 2018 (reference DC/18/3218/FUL). Listed Building Consent was granted 1st December 2018 (reference DC/17/4424/LBC). Further details can be found on the public access planning website of Waveney District Council.

Note

An itemised builders quote has been received for the full renovation of the building to the current planning permission including a basic fit and redecoration of the shop. The quote from a local contractor is for £130,000 including builders profit (£113,000 excluding builders profit). A copy of the quote is available from the auctioneers.

Services

Interested parties are requested to make their own enquiries to the relevant authorities as to the availability of services.

Local Authority

Waveney District Council

Solicitors

HKB Wiltshires, 21 Hall Quay, Great Yarmouth, NR30 IHN, Ref: Alistair Low, Tel: 01493 855676

Important Notice to Prospective Buyers:

We draw your attention to the Special Conditions of Sale within the Legal Pack, referring to other charges in addition to the purchase price which may become payable. Such costs may include Search Fees, reimbursement of Sellers costs and Legal Fees, and Transfer Fees amongst others.

Additional Fees

Administration Charge - 0.3% inc VAT of the purchase price, subject to a minimum of £900 inc VAT, payable on exchange of contracts.

Disbursements - Please see the legal pack for any disbursements listed that may become payable by the purchaser on completion.

View Larger Map

Disclaimer: The map preview provided above is for general guidance only and may not accurately reflect the exact location or surrounding buildings. Prospective buyers and interested parties are strongly advised to independently verify the precise location and surroundings before bidding.