Withdrawn | Lot 42

10-16 Carr Street, Ipswich, Suffolk, IP4 1EJ

Withdrawn

  • Commercial Property
  • Tenure: Freehold

Call the team on 01473 558 888 for more information

Auction Date

Thu 24/10/2019

Auction Time

14:00

Auction Venue

The Wolsey Room Holiday Inn, London Road, Ipswich, IP2 0UA

Substantial town centre freehold retail investment property.

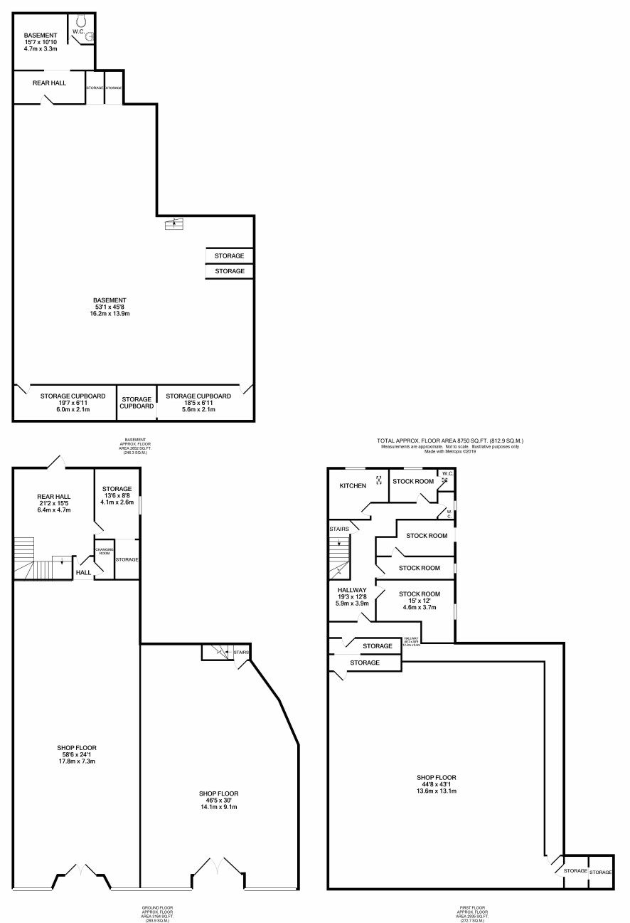
An opportunity to acquire these two substantial town centre shops currently occupied by established tenants. The premises, which are Grade II listed, extend to a combined area of 740 sq/m (7,972 sq/ft) over basement, ground and first floor retail and storage areas. The current rental income is £40,000 plus VAT for 14-16 Carr Street (Millets) and £35,000 plus VAT for 10-12 Carr Street (Smart Phone ). Although there has been an arrangement with the tenant of No 10-12 to pay £2,500 inc VAT per calendar month. Carr Street is located in the centre of the county town of Ipswich in a pedestrianised area amongst other major retailers including Santander, Poundland, Costa, Subway and Sports Direct.

Tenure

Freehold

Accommodation

The floor space is split over three levels. Millets currently occupy the Ground and First Floors 415 sq/m and the Smart Phone shop the Ground Floor and Basement 325 sq/m

VAT

Please note VAT is applicable to this Lot

Viewing

Please call the Auctioneer – 01473 558 888.

Energy Efficiency Rating (EPC)

Current Rating D, C

Services

Interested parties are requested to make their own enquiries to the relevant authorities as to the availability of services.

Local Authority

Ipswich Borough Council

Solicitors

BBS Law, First Floor, The Edge, Clowes Street, Manchester, M3 5NA, Ref: Daniel Berger, Tel: 0161 832 2500

Important Notice to Prospective Buyers:

We draw your attention to the Special Conditions of Sale within the Legal Pack, referring to other charges in addition to the purchase price which may become payable. Such costs may include Search Fees, reimbursement of Sellers costs and Legal Fees, and Transfer Fees amongst others.

Additional Fees

Administration Charge - 0.3% inc VAT of the purchase price, subject to a minimum of £900 inc VAT, payable on exchange of contracts.

Disbursements - Please see the legal pack for any disbursements listed that may become payable by the purchaser on completion.

View Larger Map

Disclaimer: The map preview provided above is for general guidance only and may not accurately reflect the exact location or surrounding buildings. Prospective buyers and interested parties are strongly advised to independently verify the precise location and surroundings before bidding.