Withdrawn | Lot 53a

32 High Street, Gosberton, Spalding, Lincolnshire, PE11 4NW

Withdrawn

  • Semi-Detached House
  • 2 Bedrooms
  • Tenure: Freehold

Call the team on 01733 889833 for more information

Auction Date

Fri 25/10/2019

Auction Time

12:00

Auction Venue

Caroline Hand Suite Peterborough United Football Ground, ABAX Stadium, London Road, Peterborough, PE2 8AL

Viewing Times:

Tue 15 Oct

15:00-15:30

Fri 18 Oct

13:00-13:30

Tue 22 Oct

10:00-10:30

A two bedroom semi-detached cottage in need of modernisation and improvement with scope to develop a barn at the rear (stpp)

A two bedroom semi-detached cottage offered with vacant possession, set in the centre of the village with the added bonus of an undeveloped barn at the rear which is attached to the cottage. Good sized rear garden and parking with a timber garage. Gosberton lies between Spalding and Boston and offer shops with a main line rail link a Peterborough providing links into London Kings Cross.

Tenure

Freehold

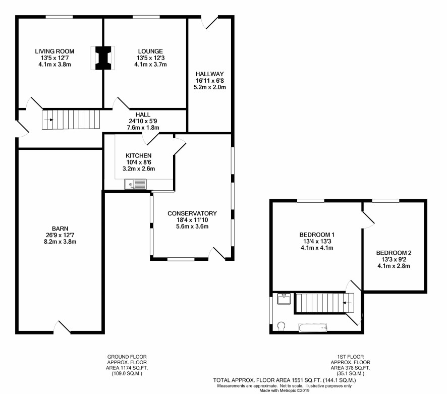
Ground Floor

Lounge, sitting room, kitchen, w.c., conservatory

First Floor

Two bedrooms, bathroom

Outside

Garden to rear, attached barn and a detached timber garage.

Note

Under the Estate Agents Act 1979 there is a statutory disclosure notice with the legal pack in respect of a declaration of interest by a Director of Auction House Essex.

Energy Efficiency Rating (EPC)

Current Rating E

Services

Interested parties are requested to make their own enquiries to the relevant authorities as to the availability of services.

Local Authority

South Holland District Council

Solicitors

Bolt Burdon, Providence House, Providence Place, London, N1 0NT, Ref: Catherine Williams, Tel: 020 7288 4799

Important Notice to Prospective Buyers:

We draw your attention to the Special Conditions of Sale within the Legal Pack, referring to other charges in addition to the purchase price which may become payable. Such costs may include Search Fees, reimbursement of Sellers costs and Legal Fees, and Transfer Fees amongst others.

Additional Fees

Buyer's Premium - £1800 inc VAT payable on exchange of contracts.

Administration Charge - 0.3% inc VAT of the purchase price, subject to a minimum of £900 inc VAT, payable on exchange of contracts.

Disbursements - Please see the legal pack for any disbursements listed that may become payable by the purchaser on completion.

View Larger Map

Disclaimer: The map preview provided above is for general guidance only and may not accurately reflect the exact location or surrounding buildings. Prospective buyers and interested parties are strongly advised to independently verify the precise location and surroundings before bidding.