For Sale By Auction | 20 August 2020 | Lot 2

Flat 5, 105 Park Road, Peterborough, Cambridgeshire

Sold £45,500

  • Property For Sale

Call the team on 01603 505 100 for more information

Auction Closed

Viewing Times

Please call Auction House East Anglia on 01603 505 100 to arrange a viewing

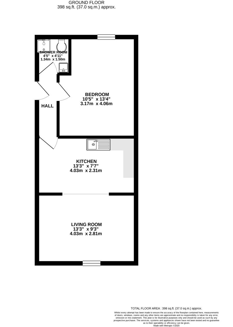
FOR SALE BY ONLINE AUCTION ON THURSDAY 20th AUGUST AT 12:00. TO REGISTER FOR LEGAL PACKS AND BIDDING INSTRUCTIONS PLEASE VISIT OUR WEBSITE A first floor one bedroom flat in the centre of Peterborough This one bedroom flat is offered with vacant possession and is located within easy reach of the city centre. The flat offers a open plan kitchen/living room, double bedroom and a shower room. The flat is for owner occupation only. AccommodationHall, lounge/ kitchen, double bedroom, shower room. Lease Details99 years from 3rd July 1987 (66 years remaining). Ground Rent £75 pa.

Services

Interested parties are requested to make their own enquiries to the relevant authorities as to the availability of services.

Additional Fees

Buyer's Premium - £360 including VAT payable on exchange of contracts.

Administration Charge - 0.3% inc VAT of the purchase price, subject to a minimum of £1,200 (£1,000+ VAT), payable on exchange of contracts.

Disbursements - Please see the legal pack for any disbursements listed that may become payable by the purchaser on completion.