For Sale By Auction | 11 April 2023 | Lot 4

105 The Causeway, Burwell, Cambridge, Cambridgeshire

Sold Prior

  • Property For Sale

Call the team on 01603 505 100 for more information

Auction Closed

Viewing Times

Please call Auction House East Anglia on 01603 505 100 to arrange a viewing

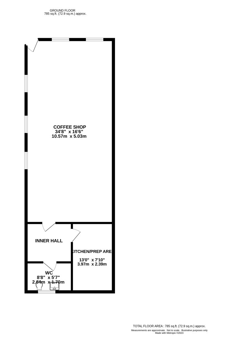
A detached freehold commercial investment currently producing £13,200 paThis commercial property is currently producing an income of £13,200pa which is currently trading as a coffee shop. We are offering the freehold interest in the building with the first floor flat already sold off on a long lease. On the ground floor there is a coffee shop, kitchen preparation area and toilet facilities with parking to the rear. Burwell is located west of the famous flat racing centre of Newmarket and north of the University City of Cambridge. The village offers local facilities.Ground Floor Coffee shop, kitchen preparation area and toilet facilitiesOutside Parking at rear.Tenure: FreeholdEPC Rating: C

Services

Interested parties are requested to make their own enquiries to the relevant authorities as to the availability of services.

Additional Fees

Buyer's Premium - £900 inc VAT payable on exchange of contracts

Administration Charge - 0.3% inc VAT of the purchase price, subject to a minimum of £1,200 (£1,000+ VAT), payable on exchange of contracts.

Disbursements - Please see the legal pack for any disbursements listed that may become payable by the purchaser on completion.