For Sale By Auction | 17 October 2023 | Lot 6

29 Townhouse Road Costessey, Norwich, Norfolk

Sold £190,000

  • Property For Sale

Call the team on 01603 505 100 for more information

Auction Closed

Viewing Times

Please call Auction House East Anglia on 01603 505 100 to arrange a viewing

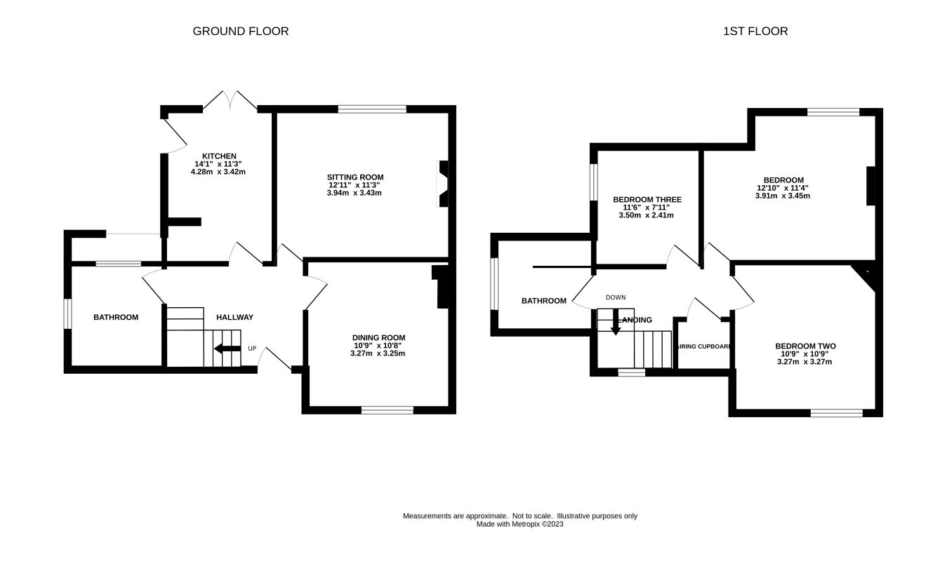
FOR SALE BY ONLINE AUCTION ON TUESDAY 17TH OCTOBERA fire damaged semi detached house now requiring full modernisationA three bedroom semi detached house requiring a full programme of modernisation following serious damage caused by fire. the property is situated in a generous garden which is also in need of attention. There is ample space for further extension subject to obtaining appropriate planning approval. Due to the condition of the property no access is possible at present. Costessey is a popular suburb of Norwich being well served by schools, shops and community facilities. Accommodation not seen. Ground Floor Hall, Lounge, dining room, kitchen, bathroomFirst Floor Landing, three bedroomsOutside Corner gardens with off road parking areaCouncil Tax Band BTenure: FreeholdEPC Rating: G

Services

Interested parties are requested to make their own enquiries to the relevant authorities as to the availability of services.

Additional Fees

Buyer's Premium - £1,140.00 inc VAT payable on exchange of contracts.

Administration Charge - 0.3% inc VAT of the purchase price, subject to a minimum of £1200 inc VAT, payable on exchange of contracts.

Disbursements - Please see the legal pack for any disbursements listed that may become payable by the purchaser on completion.