For Sale By Auction | 01 October 2024 | Lot 39

5 Barley Croft, Harlow, Essex

Sold £190,000

  • Property For Sale

Call the team on 01603 505 100 for more information

Auction Closed

Viewing Times

Please call Auction House East Anglia on 01603 505 100 to arrange a viewing

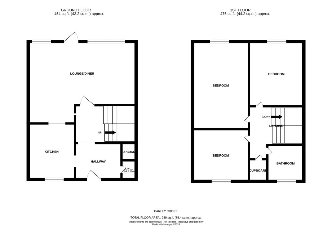
Three bedroom terrace house in need of full renovation throughoutThree bedroom terrace house in need of full renovation throughout. The property needs a kitchen and bathroom fitting. The ground floor consists of an entrance hall, space for a kitchen, and lounge/dining room. There are three good sized bedrooms on the first floor and space for a family bathroom. The property has an enclosed rear garden.Ground Floor Entrance hall, space for a kitchen, lounge/dining room.First Floor Three bedrooms and space for a bathroom.Outside A Rear garden.Council Tax Band BTenure: FreeholdEPC Rating: D

Services

Interested parties are requested to make their own enquiries to the relevant authorities as to the availability of services.

Additional Fees

Buyer's Premium - £1,300 inc VAT payable on exchange of contracts

Administration Charge - 0.3% inc VAT of the purchase price, subject to a minimum of £1,200 (£1,000+ VAT), payable on exchange of contracts.

Disbursements - Please see the legal pack for any disbursements listed that may become payable by the purchaser on completion.