For Sale By Auction | 15 October 2024 | Lot 35

83 Manton Bretton, Peterborough, Cambridgeshire

Sold £116,000

  • Property For Sale

Call the team on 01603 505 100 for more information

Auction Closed

Viewing Times

Please call Auction House East Anglia on 01603 505 100 to arrange a viewing

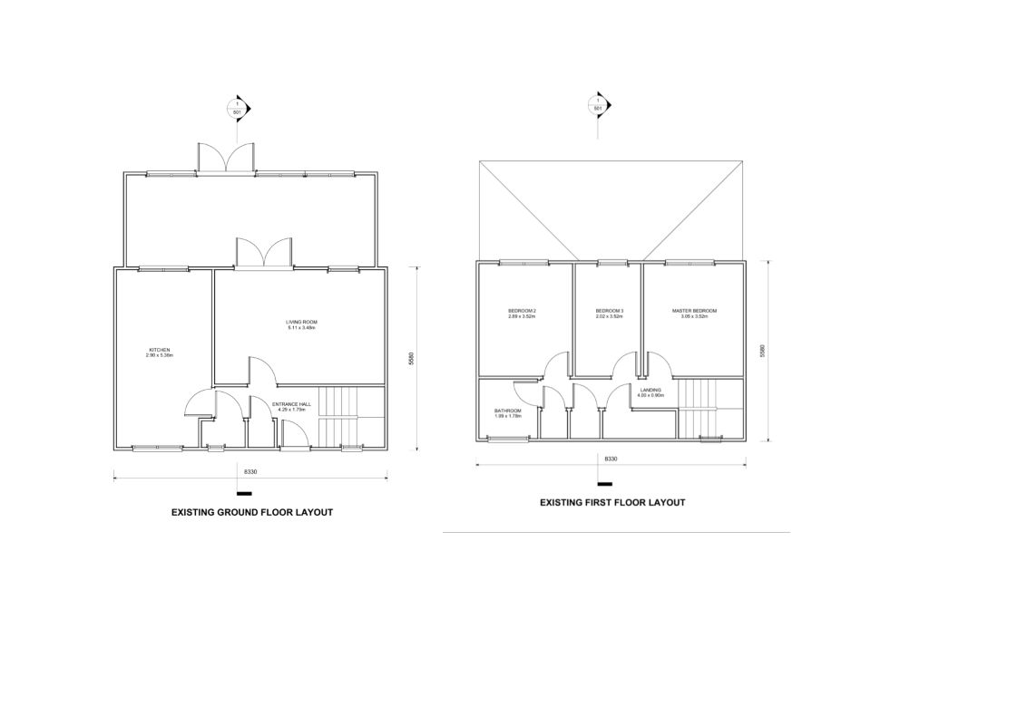
FOR SALE BY ONLINE AUCTION ON 15TH OCTOBER 2024A fire damaged three bedroom semi detached house in the popular South Bretton area.This three bedroom semi detached house has suffered fire damage and we have no access to inspect. We are informed by the owner the accommodation comprises a w.c., lounge, kitchen diner and conservatory on the ground floor with three bedrooms and a bathroom on the first floor. The property has a south facing garden at the rear and communal parking area. Due to the condition of the building we have no internal access for viewings. The owner has provided the floorplan and there is a structural report on the building available together with a plan creating four bedrooms. within the legal pack. Bretton is a suburb of Peterborough a popular rental area offering local amenities access to the hospital with a main line rail link found in the city providing a rail link into London Kings Cross.Ground floor Hall, lounge, kitchen diner, w.c. and a conservatory.First floor Landing, three bedrooms and a bathroom.Outside Garden at rear.Agent's Note Completion of the sale is required within 2 weeks from the date of the auction and prior to 30th October 2024.Tenure: FreeholdEPC Rating: C

Services

Interested parties are requested to make their own enquiries to the relevant authorities as to the availability of services.

Additional Fees

Buyer's Premium - £1,200 inc VAT payable on exchange of contracts

Administration Charge - 0.3% inc VAT of the purchase price, subject to a minimum of £1,200 (£1,000+ VAT), payable on exchange of contracts.

Disbursements - Please see the legal pack for any disbursements listed that may become payable by the purchaser on completion.