For Sale By Auction | 25 February 2025 | Lot 33

35 Sandwich Close, Braintree, Essex

Sold £224,000

  • Property For Sale

Call the team on 01603 505 100 for more information

Auction Closed

Viewing Times

Please call Auction House East Anglia on 01603 505 100 to arrange a viewing

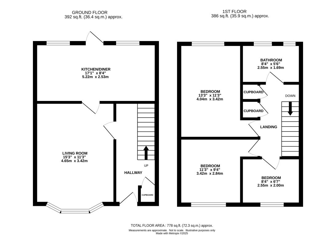
FOR SALE BY ONLINE AUCTION ON TUESDAY 25TH FEBRUARY 2025. TO REGISTER FOR LEGAL PACKS AND BIDDING INSTRUCTIONS PLEASE VISIT OUR WEBSITEFreehold three bedroom terraced house with garage and parking at rearA mid terraced family house which requires improvement. The property offers three bedrooms and a family bathroom to the first floor and a lounge and good sized kitchen/diner on the ground floor. There are front and rear gardens and garage and additional car parking space behind the rear garden. Presently the front and rear walls are overrun with ivy growth. Ground Floor Front Entrance Door Entrance Hall with doors off to: Lounge 13'3" x 11'3" Kitchen/Diner 17'1" x 8'4"First Floor Landing with doors off to: Bedroom 1 13'3" x 11' 3" Bedroom 2 11'3" x 9'4" Bedroom 3 8'4" x 6'7" Bathroom/WC 8'4" x 5'6"Externally Front Garden Open Plan - currently overgrown Rear Garden Decent size accessed via rear gate Garage at Rear Car parking space at rearAuctioneers Note ALL VIEWINGS OF THIS PROPERTY ARE AT VIEWERS OWN RISK The property is dark due to ivy growth and curtains preventing natural light from entering the property. Care should be taken when in the property. We would recommend viewers bring their own torch.Council Tax BandViewings Upcoming viewing dates: Thursday 6th February: 12 noon Tuesday 11th February 14:30pm Monday 17th February: 11:00am Thursday 20th February: 14:00pm CANCELLED Monday 3rd March: 13:00pmTenure: FreeholdEPC Rating: F

Services

Interested parties are requested to make their own enquiries to the relevant authorities as to the availability of services.

Additional Fees

Buyer's Premium - £1500 inc VAT payable on exchange of contracts.

Administration Charge - 0.3% inc VAT of the purchase price, subject to a minimum of £1,200 (£1,000+ VAT), payable on exchange of contracts.

Disbursements - Please see the legal pack for any disbursements listed that may become payable by the purchaser on completion.