For Sale By Auction | 25 February 2025 | Lot 63

Honeywell Cottage Honeycombe Road, Norwich, Norfolk

Sold £216,000

  • Property For Sale

Call the team on 01603 505 100 for more information

Auction Closed

Viewing Times

Please call Auction House East Anglia on 01603 505 100 to arrange a viewing

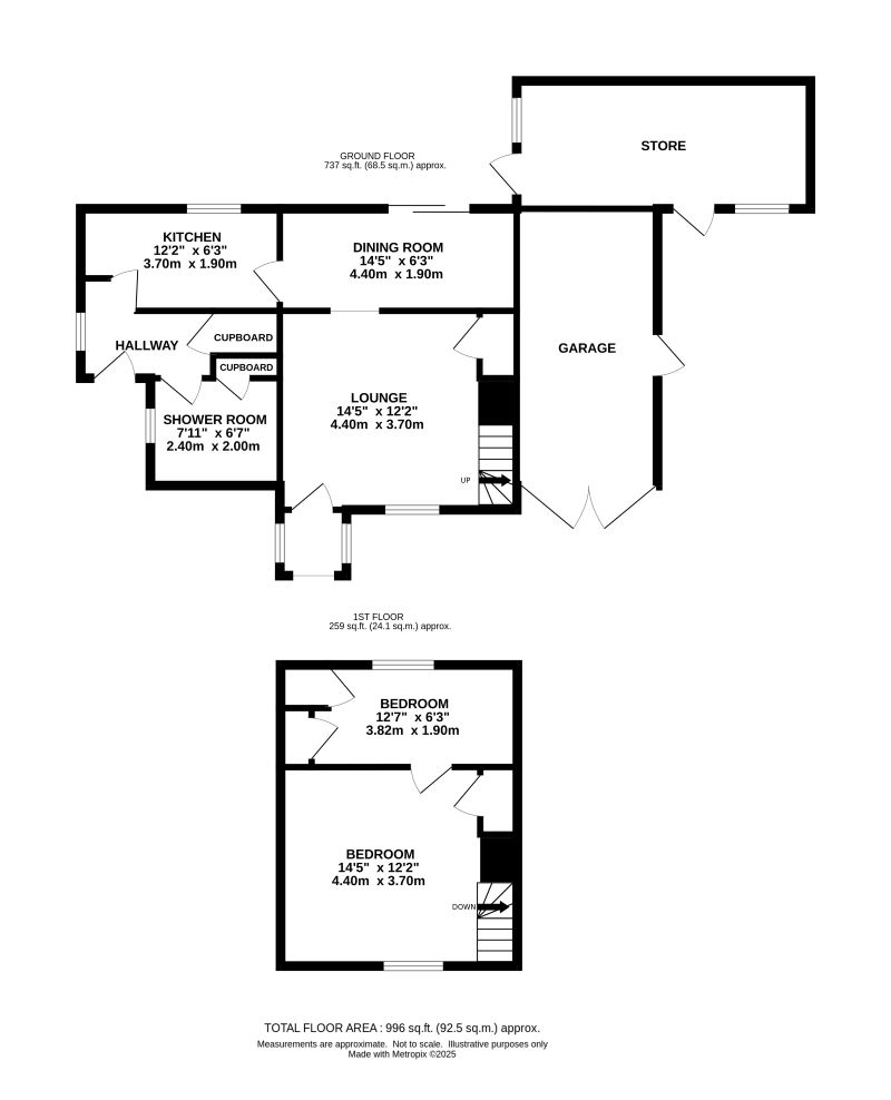
SOLD AT AUCTIONTwo bedroom detached character cottage situated in an idyllic Broadland setting.This two bedroom detached cottage is surrounded by open fields and is situated in the picturesque village of Salhouse. The property offers two bedrooms, separate lounge and dining room, kitchen and ground floor bathroom. Ample off road parking, with garage and store room. Good size picturesque front gardens and paved courtyard to the rear. The cottage would be ideal for owner occupation or as a holiday home being located near to Salhouse Broad and just 20 minutes (6.5 miles) from Norwich City centre via the A127 and only 2 miles from Wroxham. Ground Floor Porch, lounge, dining room, kitchen, shower roomFirst Floor Two bedroomsOutside Garage, store room, good size front garden, courtyard to the rearCouncil Tax Band CViewings Viewings are being arranged and the next is on Monday 24 February. Please call the Norwich office to book an appointment.Tenure: FreeholdEPC Rating: E

Services

Interested parties are requested to make their own enquiries to the relevant authorities as to the availability of services.

Additional Fees

Buyer's Premium - £1200 inc VAT payable on exchange of contracts.

Administration Charge - 0.3% inc VAT of the purchase price, subject to a minimum of £1,200 (£1,000+ VAT), payable on exchange of contracts.

Disbursements - Please see the legal pack for any disbursements listed that may become payable by the purchaser on completion.