For Sale By Auction | 29 April 2025 | Lot 12

5 King Edward VII Road, Newmarket, Suffolk

Sold £161,000

  • Property For Sale

Call the team on 01603 505 100 for more information

Auction Closed

Viewing Times

Please call Auction House East Anglia on 01603 505 100 to arrange a viewing

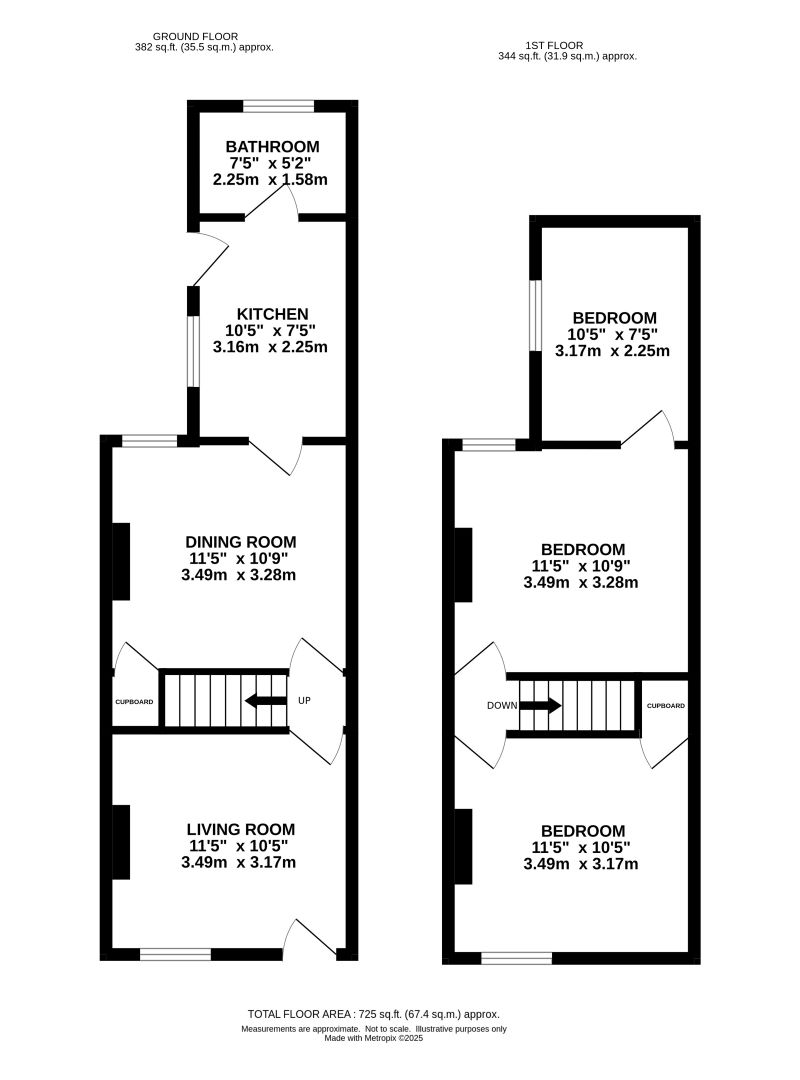
Three bedroom terrace property in need of refurbishment in this popular town of NewmarketThis three bedroom terrace property is in need of refurbishment and would be suitable for an investor or an owner occupier looking for a renovation project. The ground floor comprises a living room, kitchen, separate dining room and downstairs bathroom. On the first floor there are two good sized double bedrooms, with a third room coming off one of the bedrooms. There is a small courtyard garden to the rear of the property and there is on street parking available. King Edward VII Road is located just 1 mile from Newmarket High Street where there are a range of amenities. Newmarket station is also less than a 10 minute drive away where there is a mainline train into Cambridge and Ipswich. Ground Floor Living room, dining room, kitchen, bathroomFirst Floor Two double bedrooms and a smaller third bedroomOutside Small rear courtyard garden.Council Tax Band BTenure: FreeholdEPC Rating: C

Services

Interested parties are requested to make their own enquiries to the relevant authorities as to the availability of services.

Additional Fees

Buyer's Premium - £1560 inc VAT payable on exchange of contracts

Administration Charge - 0.3% inc VAT of the purchase price, subject to a minimum of £1,200 (£1,000+ VAT), payable on exchange of contracts.

Disbursements - Please see the legal pack for any disbursements listed that may become payable by the purchaser on completion.