For Sale By Auction | 01 July 2025 | Lot 51

3 Sheppersons Avenue Gosberton Risegate, Spalding, Lincolnshire

Sold Prior

  • Property For Sale

Call the team on 01603 505 100 for more information

Auction Closed

Viewing Times

Please call Auction House East Anglia on 01603 505 100 to arrange a viewing

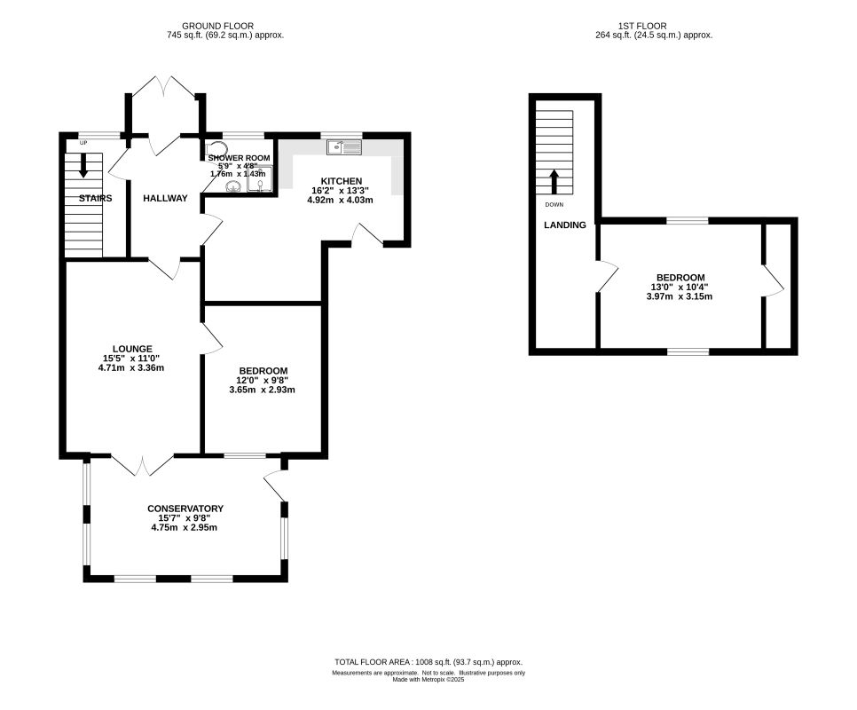
This two bedroom semi-detached chalet bungalow is in need of renovation and an ideal purchase for a builder developer looking for an investment property. The property offers lounge, kitchen, conservatory w.c. and a ground floor bedroom with a first floor bedroom and loft area. Outside offers parking and a low maintenance rear garden. Gosberton is a village and civil parish in the South Holland district of Lincolnshire, England. It is situated 9 miles south-west of Boston, 6 miles north of Spalding and 9 miles north-west of Holbeach. The parish includes the villages and hamlets of Gosberton Clough and Risegate, Westhorpe and Gosberton Cheal.Ground Floor Hall, w.c. lounge, kitchen, bedroom and a conservatory.First Floor Landing and a bedroomOutside Parking to front and courtyard garden to rear.Tenure: FreeholdEPC Rating: F

Services

Interested parties are requested to make their own enquiries to the relevant authorities as to the availability of services.

Additional Fees

Buyer's Premium - £1,200.00 Payable on Exchange of Contracts

Administration Charge - 0.3% inc VAT of the purchase price, subject to a minimum of £1,200 (£1,000+ VAT), payable on exchange of contracts.

Disbursements - Please see the legal pack for any disbursements listed that may become payable by the purchaser on completion.