Withdrawn | Lot 3

2b St. Georges Avenue, Bridlington, East Riding of Yorkshire YO15 2ED

Withdrawn

  • House (unspecified)
  • Tenure: See Legal Pack

Call the team on 0845 400 9900 for more information

Auction Date

Wed 30/07/2025

Auction Time

13:00

Auction Venue

Regional Online

A semi-detached house with planning permission to convert into three flats.

This large semi-detached house has been granted planning permission to convert the building into three flats. The current owner has commenced work on the property; however, a change in circumstances for the owner means it is now available as a blank canvas for a new owner to finish the project to their own requirements. The property benefits from gas central heating (not tested) and is single-glazed.

Tenure

See Legal Pack

Location

Situated off Tennyson Avenue in Bridlington, the property is located in a residential area which is popular with families due to its close proximity to schools, shops and transport links.

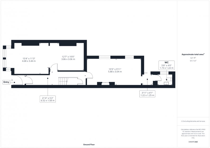
Ground Floor:

Entrance Hall, Two Large Rooms, Downstairs WC.

First Floor:

Landing leading to Four Rooms.

Second Floor

: Landing leading to Two Rooms.

Outside:

Secure enclosed courtyard.

Tenure

Freehold.

Council Tax

Band B payable to East Riding of Yorkshire Council.

Planning Permission

Planning permission has been granted for "Change of use of dwelling to form three self-contained apartments, installation of a roof light to front, construction of a dormer window to the rear, construction of timber bin store to rear and associated works". Full details can be viewed on the ERYC Planning Portal using reference22/03538/PLF.

Services

The property is connected to mains water, drainage and electricity, but these have not been tested.

Viewings

Strictly by appointment with the auctioneers on 0845 400 9900.

Energy Efficiency Rating (EPC)

Current Rating F

Services

Interested parties are invited to make their own enquiries to the relevant authorities as to the availability of the services.

Local Authority

East Riding of Yorkshire Council

Important Notice to Prospective Buyers:

We draw your attention to the Special Conditions of Sale within the Legal Pack, referring to other charges in addition to the purchase price which may become payable. Such costs may include Search Fees, reimbursement of Sellers costs and Legal Fees, and Transfer Fees amongst others.

Additional Fees

Buyer's Premium - £720 inc VAT payable on exchange of contracts.

Administration Charge - 0.3% inc VAT of the purchase price, subject to a minimum of £900 inc VAT, payable on exchange of contracts.

Disbursements - Please see the legal pack for any disbursements listed that may become payable by the purchaser on completion.

View Larger Map

Disclaimer: The map preview provided above is for general guidance only and may not accurately reflect the exact location or surrounding buildings. Prospective buyers and interested parties are strongly advised to independently verify the precise location and surroundings before bidding.