For Sale By Auction | 13:00, 01 October 2025 | Lot 18

12 Station Avenue, Bridlington, East Yorkshire, YO16 4LZ

*Guide | £145,000 (plus fees)

  • Detached House
  • 6 Bedrooms
  • Tenure: Freehold.

Call the team on 0845 400 9900 for more information

Auction Date

Wed 01/10/2025

Auction Time

13:00

Auction Venue

Regional Online

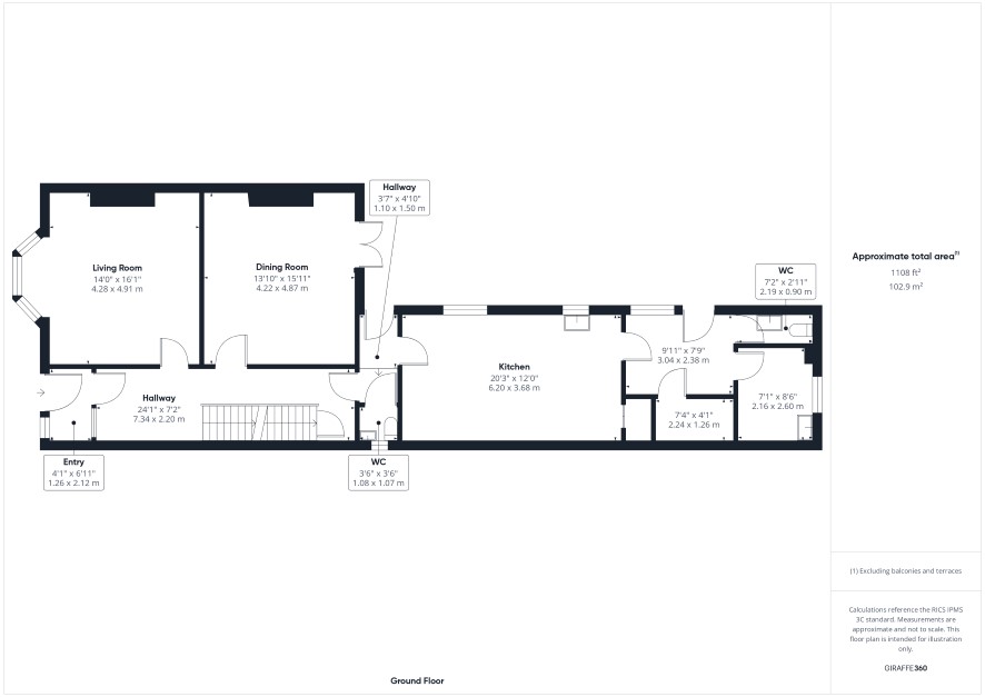
A six bedroom detached house requiring refurbishment throughout.

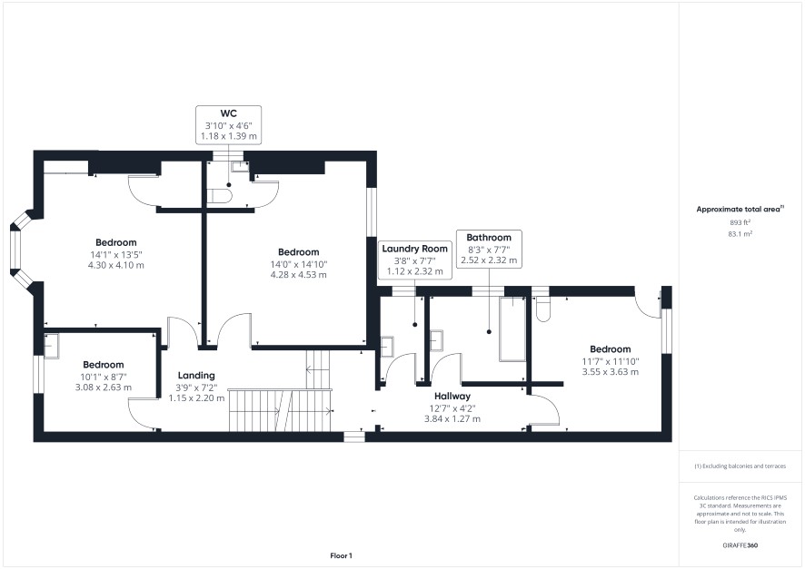
This six -bedroom detached house having previously been a residential home, is in need of modernisation and refurbishment throughout. The property offers potential to investors and property renovators alike to create a large family home or convert into flats (subject to necessary planning consents). The accommodation comprises two reception rooms, kitchen, utility rooms, three WCs, two bathrooms and seven bedrooms. The property benefits from double glazing and gas central heating.

Tenure

Freehold.

Location

Situated on Station Avenue in Bridlington, the property is located in close proximity of a range of local amenities including supermarkets, eateries and transport links.

Accommodation

Ground Floor: Entrance Hall, Living Room, Downstairs WCs, Kitchen, Utility Rooms. First Floor: Landing leading to four bedrooms (one with ensuite), Laundry Room, Bathroom. Second Floor: Landing leading to two further bedrooms and shower room.

External

Large rear garden laid mainly to lawn with area of decking.

Council Tax

The property is a Band 'E' and Council Tax is payable to East Riding of Yorkshire Council.

Services

Understood to be connected to mains electricity, gas, water and drainage but the services have not been tested.

Viewings

Strictly by appointment with the Auctioneers on 0845 400 9900.

Method of Sale

The property will be offered for sale by online auction with bidding commencing at 1pm on Monday 29th September 2025 and closing on Wednesday 1st October 2025 at 1 pm. For further legal information relating to this lot and to register to bid, please go to auctionhouse.co.uk/hullandeastyorkshire.

Conditions of Sale

The property will be sold subject to conditions of sale, copies of which will be available for inspection at the auctioneer’s offices, with the solicitors and on-line at auctionhouse.co.uk/hullandeastyorkshire prior to the date of the auction.

Guide Price

Guides are provided as an indication of each sellers minimum expectation. They are not necessarily figures which a property will sell for and may change at any time prior to the auction. Each property will be offered subject to a Reserve (a figure below which the Auctioneer cannot sell the property during the auction) which we expect will be set within the Guide Range or no more than 10% above a single figure Guide.

Energy Efficiency Rating (EPC)

Current Rating G

Services

Interested parties are invited to make their own enquiries to the relevant authorities as to the availability of the services.

Local Authority

East Riding of Yorkshire Council

Solicitors

Ascent, 1 St. Peters Square, Manchester, Lancashire, M2 3AF, Ref: Marjana Akhtar

Important Notice to Prospective Buyers:

We draw your attention to the Special Conditions of Sale within the Legal Pack, referring to other charges in addition to the purchase price which may become payable. Such costs may include Search Fees, reimbursement of Sellers costs and Legal Fees, and Transfer Fees amongst others.

Additional Fees

Buyer's Premium - The purchaser will be required to pay a buyer’s premium of £1500 (£1,250 + VAT) in addition to the purchase price of the property.

Administration Charge - The purchaser will be required to pay an administration charge of £1,200 (£1,000 plus VAT) in addition to the purchase price of the property.

Disbursements - Please see the legal pack for any disbursements listed that may become payable by the purchaser on completion.

Please see the legal pack for any disbursements listed that may become payable by the purchaser on completion.

View Larger Map

Disclaimer: The map preview provided above is for general guidance only and may not accurately reflect the exact location or surrounding buildings. Prospective buyers and interested parties are strongly advised to independently verify the precise location and surroundings before bidding.