For Sale By Auction | 14:00, 13 November 2025 | Lot 1

50 Highfield Street, Coalville, Leicestershire LE67 3BL

*Guide | £60,000 (plus fees)

  • Terraced House
  • 3 Bedrooms
  • Tenure: Freehold

Call the team on 0116 222 7575 for more information

Auction Date

Thu 13/11/2025

Auction Time

14:00

Auction Venue

Livestream

Viewing Times:

Tue 14 Oct

14:30-15:00

Tue 21 Oct

12:00-12:30

Tue 28 Oct

12:00-12:30

Tue 4 Nov

14:30-15:00

Tue 11 Nov

12:00-12:30

A three bedroomed mid terraced house in need of modernisation.

***** FOR SALE BY PUBLIC AUCTION ON 13th NOVEMBER 2025. 2.00 PM. REGISTER TO BID**** A three bedroomed mid terraced house close to Coalville town centre. in need of renovation the property has a through lounge/diner and kitchen. there is a single storey extension that forms a utility room and cloak/WC. Three bedrooms and a shower room to the first floor. Forecourt garden to front and good sized rear gardens. OPEN HOUSE VIEWINGS. PLEASE VIEW SECTION TO THE RIGHT. MORE DATES TO FOLLOW.

Tenure

Freehold

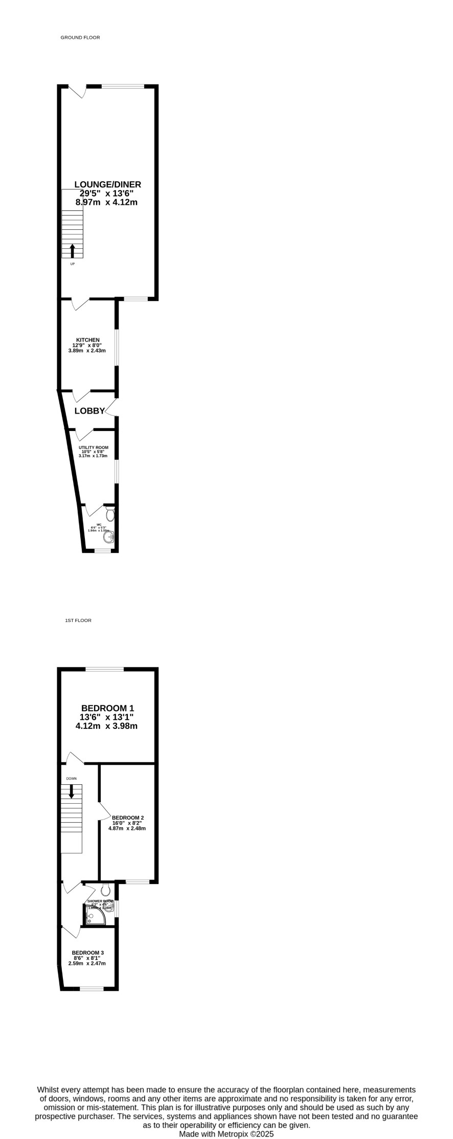
Ground Floor

Lounge/Diner4.12m x 8.97m, Kitchen 3.89m x 2.43m, Utility Room 3.17m x 1.73m, Cloak/WC

First Floor

Landing, bedroom 1 4.12m x 3.98m, bedroom 2 4.87m x 2.48m, Bedroom 3 2.59m x 2.47m, Shower room

Outside

Forecourt garden to the front and large rear gardens.

Energy Efficiency Rating (EPC)

Current Rating D

Services

Interested parties are requested to make their own enquiries to the relevant authorities as to the availability of services.

Local Authority

North West Leicestershire District Council

Important Notice to Prospective Buyers:

We draw your attention to the Special Conditions of Sale within the Legal Pack, referring to other charges in addition to the purchase price which may become payable. Such costs may include Search Fees, reimbursement of Sellers costs and Legal Fees, and Transfer Fees amongst others.

Additional Fees

Buyer's Premium - £1560 inc VAT payable on exchange of contracts.

Administration Charge - Purchasers will be required to pay an administration fee of £1200.00 (£1000.00 plus VAT)

Disbursements - Please see the legal pack for any disbursements listed that may become payable by the purchaser on completion.

View Larger Map

Disclaimer: The map preview provided above is for general guidance only and may not accurately reflect the exact location or surrounding buildings. Prospective buyers and interested parties are strongly advised to independently verify the precise location and surroundings before bidding.