Sold Prior | Lot 5

Residential Development Site, The Paddocks, Grayingham, Lincolnshire, DN21 4ER

Sold Prior

  • Plot
  • 1 Bedroom
  • Tenure: See Legal Pack

Call the team on 01427 616436 for more information

Auction Date

Tue 22/11/2016

Auction Time

18:30

Auction Venue

Gainsborough Golf Club Belt Road, Thonock Hill, Gainsborough, DN21 1PZ

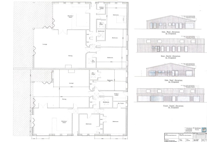
Situated in the centre of this popular rural village which is well located for access to surrounding towns including Scunthorpe, Gainsborough and the City of Lincoln is this development opportunity of a former agricultural building occupying a site extending to approximately 1.68 acres. Planning permission was granted under Part 3 Clause Q of schedule 2 of Town & Country Planning (General Permitted Development) order 2015 for the change of use from agricultural building to 2 dwellings, application number 133849.

Tenure

See Legal Pack

Planning Permission

The proposed dwellings will incorporate the steel framework of the existing building to create 2 semi detached properties with accommodation briefly comprising Entrance Hall, Lounge with Dining area, Kitchen/Diner, Utility, Lobby, 3 Bedrooms (2 with en suite facilities) and bathroom. A copy of the planning decision and drawings are available at the agents office.

Existing Building

The present steel framed building is approximately 85ft long x 60ft wide x 10ft to eaves. The roof is clad in 0.5mm single skin plastic coated box profile with 80mm insulation panels.

Services

Interested parties are invited to make their own enquiries to the relevant authorities as to the availability of the services.

Property Misdescription Act 1991

These particulars are believed to be correct but their accuracy is not guaranteed and they do not form any part of any contract. Information relating to Rating and Town & Country Planning matters has been obtained by verbal enquiry only. Prospective purchasers are advised to make their own enquiries of the appropriate Authority. All measurements, areas and distances are approximate only. Potential purchasers are advised to check them.

Services

Interested parties are invited to make their own enquiries to the relevant authorities as to the availability of the services.

Local Authority

West Lindsey District Council

Solicitors

Andrew Jay & Co, Andrew Jay & Co, 26 Lord Street, Gainsborough, DN21 2DB, Ref: Mr Graham Bembridge, Tel: 01427 612412

Important Notice to Prospective Buyers:

We draw your attention to the Special Conditions of Sale within the Legal Pack, referring to other charges in addition to the purchase price which may become payable. Such costs may include Search Fees, reimbursement of Sellers costs and Legal Fees, and Transfer Fees amongst others.

Additional Fees

Administration Charge - Purchasers will be required to pay an administration fee of £480 inc VAT

Disbursements - Please see the legal pack for any disbursements listed that may become payable by the purchaser on completion.

View Larger Map

Disclaimer: The map preview provided above is for general guidance only and may not accurately reflect the exact location or surrounding buildings. Prospective buyers and interested parties are strongly advised to independently verify the precise location and surroundings before bidding.