For Sale By Auction | 9:45, 29 June 2022 | Lot 23A

29 Alma Road, Muswell Hill, London, N10 2NG

Sold £315,000

  • Flat
  • 2 Bedrooms
  • Tenure: Long Leasehold. The property is held on a 999 year lease from 29th September 2002.

Call the team on 020 7625 9007 for more information

Auction Date

Wed 29/06/2022

Auction Time

9:45

Auction Venue

Live Stream

Viewing Times:

Fri 17 Jun

15:00-15:30

Sat 18 Jun

14:30-15:00

Tue 21 Jun

15:00-15:30

Thu 23 Jun

15:00-15:30

Mon 27 Jun

15:00-15:30

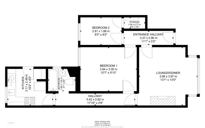
A Vacant Ground Floor Two Bedroom Maisonette

The property comprises a ground floor two bedroom garden maisonette situated within a semi-detached building arranged over ground and first floors.

Tenure

Long Leasehold. The property is held on a 999 year lease from 29th September 2002.

Location

The property is situated on a residential road close to local shops and amenities. The open spaces of Hollickwood Park are within easy reach. Transport links are provided by Bounds Green underground station (Piccadilly line).

Accommodation

Ground Floor Reception Room Two Bedrooms Kitchen Bathroom

Exterior

The property benefits from a private rear garden.

Services

Interested parties are requested to make their own enquiries to the relevant authorities as to the availability of services.

Important Notice to Prospective Buyers:

We draw your attention to the Special Conditions of Sale within the Legal Pack, referring to other charges in addition to the purchase price which may become payable. Such costs may include Search Fees, reimbursement of Sellers costs and Legal Fees, and Transfer Fees amongst others.

Additional Fees

Administration Charge - Purchasers will be required to pay an administration fee of £1,800 inc VAT

Disbursements - Please see the legal pack for any disbursements listed that may become payable by the purchaser on completion.

View Larger Map

Disclaimer: The map preview provided above is for general guidance only and may not accurately reflect the exact location or surrounding buildings. Prospective buyers and interested parties are strongly advised to independently verify the precise location and surroundings before bidding.