For Sale By Auction | 9:00, 08 February 2023 | Lot 27

57 Hainault Avenue, Westcliff-on-Sea, Essex, SS0 9HA

Sold £103,000

  • Flat
  • 1 Bedroom
  • Tenure: Leasehold. The property is held on a 99 year lease from 1st July 1985 (thus approximately 61 years unexpired).

Call the team on 020 7625 9007 for more information

Auction Date

Wed 08/02/2023

Auction Time

9:00

Auction Venue

Live Stream

Viewing Times:

Thu 26 Jan

12:00-12:30

Wed 1 Feb

12:00-12:30

Sat 4 Feb

12:00-12:30

Tue 7 Feb

12:00-12:30

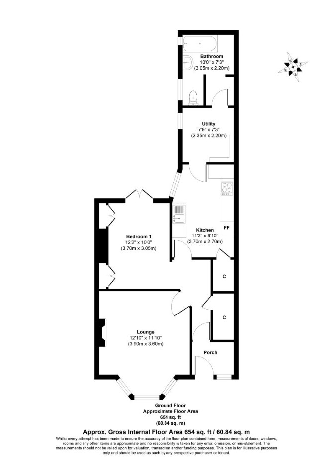
A Vacant Ground Floor One Bedroom Flat

The property comprises a ground floor one bedroom flat situated within an end of terrace building arranged over ground and first floors. The property requires a full program of refurbishment and could be extended at the rear to provide a second bedroom (subject to obtaining all relevant consents).

Tenure

Leasehold. The property is held on a 99 year lease from 1st July 1985 (thus approximately 61 years unexpired).

6 Week Completion Available or Earlier if Required

Location

The property is situated on a residential road close to local shops and amenities. The open spaces of Priory Park are the coastline are close by. Transport links are provided by Southend Victoria rail station.

Accommodation

Ground Floor Reception Room Bedroom Kitchen Bathroom

Exterior

The property benefits from a rear garden.

Further Information

When purchasing a flat that has a short lease, it is important to understand that in addition to the purchase price, if you wish to extend the lease to 90+ years, you will need to pay a premium to the freeholder. This is done by way of serving a Section 42 notice to the freeholder requesting a lease extension with a suggested price for the extension. The freeholder has the right to refuse the offer and submit a counter notice with their suggested price. In most cases, the leaseholder must have owned the property for at least 2 years in order to serve a S42 notice. If you do not fully understand this process, please ask the auctioneers or a solicitor.

Services

Interested parties are requested to make their own enquiries to the relevant authorities as to the availability of services.

Important Notice to Prospective Buyers:

We draw your attention to the Special Conditions of Sale within the Legal Pack, referring to other charges in addition to the purchase price which may become payable. Such costs may include Search Fees, reimbursement of Sellers costs and Legal Fees, and Transfer Fees amongst others.

Additional Fees

Administration Charge - Purchasers will be required to pay an administration fee of £1,800 inc VAT

Disbursements - Please see the legal pack for any disbursements listed that may become payable by the purchaser on completion.

View Larger Map

Disclaimer: The map preview provided above is for general guidance only and may not accurately reflect the exact location or surrounding buildings. Prospective buyers and interested parties are strongly advised to independently verify the precise location and surroundings before bidding.