For Sale By Auction | 9:00, 08 February 2023 | Lot 28

6 Park Road, Westcliff-on-Sea, Essex, SS0 7PE

Sold £200,000

  • Flat
  • 2 Bedrooms
  • Tenure: Freehold

Call the team on 020 7625 9007 for more information

Auction Date

Wed 08/02/2023

Auction Time

9:00

Auction Venue

Live Stream

Viewing Times:

Thu 26 Jan

11:00-11:30

Wed 1 Feb

11:00-11:30

Sat 4 Feb

11:00-11:30

Tue 7 Feb

11:00-11:30

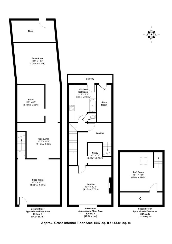
A Vacant Mid Terrace Mixed Use Building Comprising a Ground Floor Shop and a First and Second Floor Two Bedroom Flat

The property comprises a mid terrace building arranged to provide a ground floor shop and a first and second floor two bedroom flat. The property requires a full program of refurbishment and in addition to the application for the ground floor conversion, there is further scope to reconfigure the upper two floors (subject to obtaining any required consents).

Tenure

Freehold

Location

The property is situated on a residential road close to local shops and amenities. The open spaces of Southend Cliff Gardens and the coastline are within easy reach. Transport links are provided by Southend Central rail station.

Accommodation

Ground Floor Retail Area First Floor Reception Room Kitchen Bedroom/Office Bathroom Second Floor Bedroom GIA 143 sq m (1,539 sq ft)

Planning

An application has been submitted to Southend-on-Sea Borough Council (Ref: 23/00039/PA64) for Permitted Development Rights to convert the Ground Floor from a Shop (Class E) to a Self-Contained Flat (Class C3). A decision for this application is pending. Auction House London make no representations or warranties with regard to this scheme and/or the validity of the aforementioned application. Buyers must rely on their own enquiries.

Services

Interested parties are requested to make their own enquiries to the relevant authorities as to the availability of services.

Important Notice to Prospective Buyers:

We draw your attention to the Special Conditions of Sale within the Legal Pack, referring to other charges in addition to the purchase price which may become payable. Such costs may include Search Fees, reimbursement of Sellers costs and Legal Fees, and Transfer Fees amongst others.

Additional Fees

Administration Charge - Purchasers will be required to pay an administration fee of £1,800 inc VAT

Disbursements - Please see the legal pack for any disbursements listed that may become payable by the purchaser on completion.

View Larger Map

Disclaimer: The map preview provided above is for general guidance only and may not accurately reflect the exact location or surrounding buildings. Prospective buyers and interested parties are strongly advised to independently verify the precise location and surroundings before bidding.