Sold Prior | Lot 187

32 High Street, Emsworth, Hampshire, PO10 7AW

Sold Prior

  • Terraced House
  • 2 Bedrooms
  • Tenure: Freehold

Call the team on 020 7625 9007 for more information

Auction Date

Wed 15/03/2023

Auction Time

09:00

Auction Venue

Live Stream

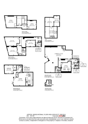
A Commercial and Residential Investment Comprising a Ground Floor and Part First Floor Shop, a First Floor Office, a First Floor One Bedroom Flat and a One Bedroom Bungalow to the Rear. Part Let Producing £16,500 Per Annum.

The property comprises a mid terrace building arranged to provide a ground floor and part first floor shop, a first floor one bedroom flat, a first floor self contained office and a one bedroom bungalow to the rear. The bungalow is offered in good condition and was erected in 2013.

Tenure

Freehold

By Order of the Executors

Location

The property is situated on a mixed use road close to local shops and amenities. The open spaces of Brook Meadow and Emsworth Park are within easy reach. Transport links are provided by Emsworth rail station.

Services

Interested parties are requested to make their own enquiries to the relevant authorities as to the availability of services.

Important Notice to Prospective Buyers:

We draw your attention to the Special Conditions of Sale within the Legal Pack, referring to other charges in addition to the purchase price which may become payable. Such costs may include Search Fees, reimbursement of Sellers costs and Legal Fees, and Transfer Fees amongst others.

Additional Fees

Administration Charge - Purchasers will be required to pay an administration fee of £1,800 inc VAT

Disbursements - Please see the legal pack for any disbursements listed that may become payable by the purchaser on completion.

View Larger Map

Disclaimer: The map preview provided above is for general guidance only and may not accurately reflect the exact location or surrounding buildings. Prospective buyers and interested parties are strongly advised to independently verify the precise location and surroundings before bidding.