Sold Prior | Lot 188

Land at Wyck Hill, Stow on the Wold, Cheltenham, Gloucestershire, GL54 1HY

Sold Prior

  • Land
  • Tenure: Freehold

Call the team on 020 7625 9007 for more information

Auction Date

Wed 15/03/2023

Auction Time

09:00

Auction Venue

Live Stream

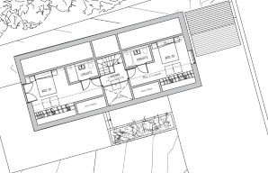
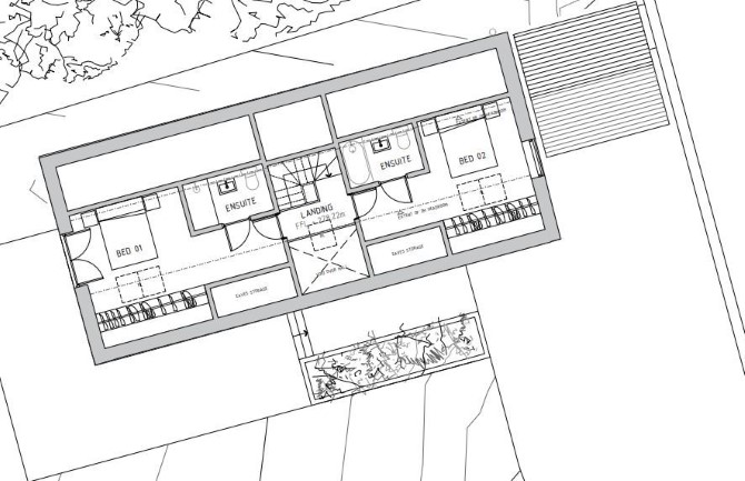
A Vacant Former Garage Block Offered With Planning Permission for the Conversion of the Existing Garage Building to a Three Bedroom Dwelling House and Erection of Carport

The property comprises a former garage block occupying a plot measuring approximately 0.25 acres (10,890 sq ft)

Tenure

Freehold

Location

The property is situated in the small gated community at Wyck Hill. Transport links are provided by the A429.

Planning

Cotswold District Council granted the following planning permission (ref: 22/01524/FUL) on 23/08/2022: 'Conversion of existing garage building to dwelling house and erection of carport.'

Proposed Accommodation

Ground Floor Open Plan Reception Room/Kitchen Snug/Study Bedroom Shower Room First Floor Two Bedrooms (both with En-Suite)

The property benefits from, and is subject to, rights in relation to the access road. Please refer to the legal pack for further information.

Services

Interested parties are requested to make their own enquiries to the relevant authorities as to the availability of services.

Important Notice to Prospective Buyers:

We draw your attention to the Special Conditions of Sale within the Legal Pack, referring to other charges in addition to the purchase price which may become payable. Such costs may include Search Fees, reimbursement of Sellers costs and Legal Fees, and Transfer Fees amongst others.

Additional Fees

Administration Charge - Purchasers will be required to pay an administration fee of £1,800 inc VAT

Disbursements - Please see the legal pack for any disbursements listed that may become payable by the purchaser on completion.

View Larger Map

Disclaimer: The map preview provided above is for general guidance only and may not accurately reflect the exact location or surrounding buildings. Prospective buyers and interested parties are strongly advised to independently verify the precise location and surroundings before bidding.