For Sale By Auction | 09:30, 12 November 2025 | Lot 62

139 Friern Barnet Road, Friern Barnet, London, N11 3DX

Sold £363,000

  • Detached House
  • 3 Bedrooms
  • Tenure: Freehold

Call the team on 020 7625 9007 for more information

Auction Date

Wed 12/11/2025

Auction Time

09:30

Auction Venue

Live Stream

Viewing Times:

Thu 30 Oct

12:00-12:30

Mon 3 Nov

12:00-12:30

Wed 5 Nov

12:00-12:30

Fri 7 Nov

12:00-12:30

Sat 8 Nov

13:00-13:30

Tue 11 Nov

12:00-12:30

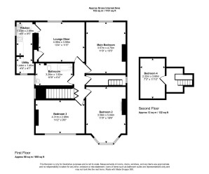
A Detached Building Arranged to Provide a Ground Floor Flat (Sold Off) and a Vacant First and Second Floor Three Bedroom Split Level Flat

The property comprises a detached building arranged to provide two self-contained flats (one sold off) over ground and two upper floors.

Tenure

Freehold

Location

The property is situated on a residential road close to local shops and amenities. The open spaces of Friary Park are within easy reach. Transport links are provided by Arnos Grove underground station (Piccadilly Line).

Accommodation

Flat 1 Ground Floor Flat - Not Inspected (Sold Off) Flat 2 First Floor Reception Room Kitchen Three Bedrooms Bathroom Second Floor Loft Room

Exterior

The property benefits from a rear garden

Energy Efficiency Rating (EPC)

Current Rating E

Services

Interested parties are requested to make their own enquiries to the relevant authorities as to the availability of services.

Important Notice to Prospective Buyers:

We draw your attention to the Special Conditions of Sale within the Legal Pack, referring to other charges in addition to the purchase price which may become payable. Such costs may include Search Fees, reimbursement of Sellers costs and Legal Fees, and Transfer Fees amongst others.

Additional Fees

Administration Charge - Purchasers will be required to pay an administration fee of £1,800 inc VAT

Disbursements - Please see the legal pack for any disbursements listed that may become payable by the purchaser on completion.

View Larger Map

Disclaimer: The map preview provided above is for general guidance only and may not accurately reflect the exact location or surrounding buildings. Prospective buyers and interested parties are strongly advised to independently verify the precise location and surroundings before bidding.