For Sale By Auction | 09:30, 12 November 2025 | Lot 62A

3 York Avenue, Slough, Buckinghamshire, SL1 3HP

Sold £550,000

  • Semi-Detached House
  • 7 Bedrooms
  • Tenure: Freehold

Call the team on 020 7625 9007 for more information

Auction Date

Wed 12/11/2025

Auction Time

09:30

Auction Venue

Live Stream

Viewing Times:

Wed 29 Oct

12:00-12:30

Sat 1 Nov

12:00-12:30

Wed 5 Nov

12:00-12:30

Mon 10 Nov

12:00-12:30

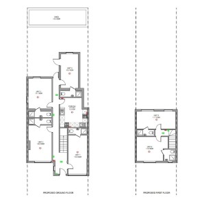
A Vacant Semi-Detached Building with an HMO Licence, Arranged to Provide a Six-Room HMO and a Studio Flat to the Rear. Estimated Rental Value Based on the Local Housing Allowance (LHA) Rate is £64,621.44 per Annum (Source: LHA Website, Subject to Condition, Their Terms, and Current Requirements).

The property comprises a semi detached building arranged to provide a six room HMO and a studio flat to the rear.

Tenure

Freehold

Location

The property is situated on a residential road close to local shops and amenities. The open spaces of Godolphin Playing Fields are within easy reach. Transport links are provided by Burnham rail station.

Accommodation

Ground Floor Communal Kitchen Four Letting Rooms (All with En-Suites) First Floor Two Letting Rooms (Both with En-Suites) Rear Studio Flat Studio Room Kitchen Bathroom

Exterior

The property benefits from a rear garden and off street parking.

Energy Efficiency Rating (EPC)

Current Rating D

Services

Interested parties are requested to make their own enquiries to the relevant authorities as to the availability of services.

Important Notice to Prospective Buyers:

We draw your attention to the Special Conditions of Sale within the Legal Pack, referring to other charges in addition to the purchase price which may become payable. Such costs may include Search Fees, reimbursement of Sellers costs and Legal Fees, and Transfer Fees amongst others.

Additional Fees

Administration Charge - Purchasers will be required to pay an administration fee of £1,800 inc VAT

Disbursements - Please see the legal pack for any disbursements listed that may become payable by the purchaser on completion.

View Larger Map

Disclaimer: The map preview provided above is for general guidance only and may not accurately reflect the exact location or surrounding buildings. Prospective buyers and interested parties are strongly advised to independently verify the precise location and surroundings before bidding.