For Sale By Auction | 12:00, 12 December 2023 | Lot 16

38 Bull Green, Halifax, West Yorkshire, HX1 5AB

*Guide | £70,000+ (plus fees)

  • Property For Sale
  • Tenure: Freehold

Call the team on 0161 925 3254 for more information

Auction Date

Tue 12/12/2023

Auction Time

12:00

Auction Venue

Live Stream

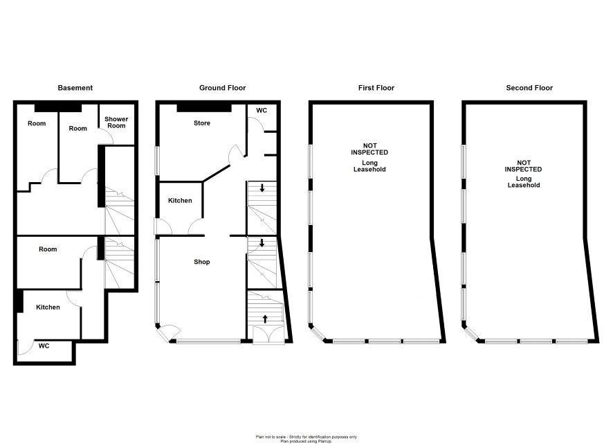
This substantial commercial property comprises a ground floor retail unit with the two flats above having been sold off on long leaseholds. The retail unit and cellar are currently let on a three year agreement at the following rents, Y1, £8,250 / Y2, £9,000 / Y3, £9,500 . Additional income is produced in the form of a ground rent totalling £250 per annum per flat. The property occupies a prominent corner site at the junction of Bull green and Lord Street in Halifax town centre.

Tenure

Freehold

Basement

Shower Room Kitchen WC

Ground Floor

Shop Kitchen Store WC

Energy Efficiency Rating (EPC)

Current Rating E

Services

Interested parties are requested to make their own enquiries to the relevant authorities as to the availability of services.

Local Authority

Calderdale Metropolitan Borough Council.

Important Notice to Prospective Buyers:

We draw your attention to the Special Conditions of Sale within the Legal Pack, referring to other charges in addition to the purchase price which may become payable. Such costs may include Search Fees, reimbursement of Sellers costs and Legal Fees, and Transfer Fees amongst others.

Additional Fees

Administration Charge - Purchasers will be required to pay an administration fee of 0.9% inc VAT, subject to a minimum of £1500 inc VAT.

Disbursements - Please see the legal pack for any disbursements listed that may become payable by the purchaser on completion.

View Larger Map

Disclaimer: The map preview provided above is for general guidance only and may not accurately reflect the exact location or surrounding buildings. Prospective buyers and interested parties are strongly advised to independently verify the precise location and surroundings before bidding.