For Sale By Auction | 12:00, 10 September 2024 | Lot 4

Dominick House, St Albans Road, Wallasey, Merseyside, CH44 5XY

Sold £140,000

  • Property For Sale
  • Tenure: Leasehold

Call the team on 0161 925 3254 for more information

Auction Date

Tue 10/09/2024

Auction Time

12:00

Auction Venue

Live Stream

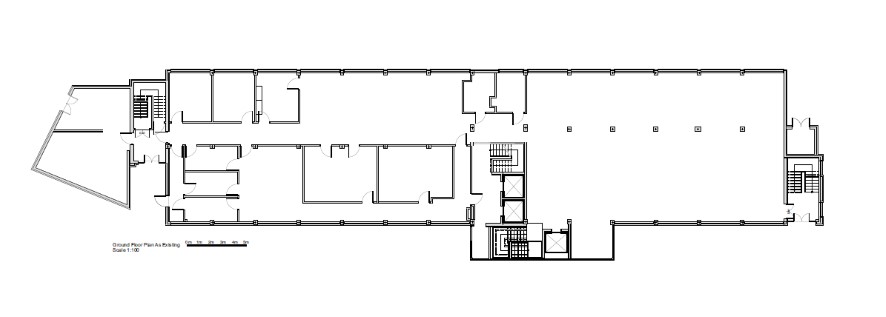
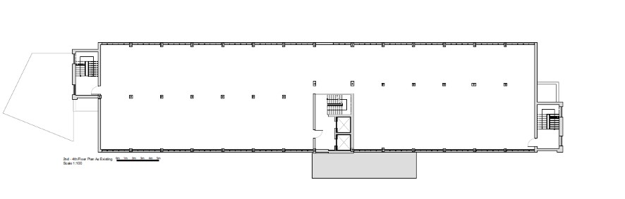
This substantial five storey leasehold office building has a GIA of approximately 2,097 sq m (22,580 sq ft) and is now in need of complete redevelopment / reconfiguration in order to restore it to former glories. Prior approval for a change of use from B1 to Residential was granted in 2020 with further information available on the Wirral planning portal searching reference COMX/20/00235. Interested parties may also look at alternative schemes including refurbishment of the existing offices or a mixed use development subject to the necessary consents being obtained. The property is located in the Liscard area of Wallasey Town with a plethora of shops and amenities on the doorstep. The local train station is one mile away with Liverpool city centre easily accessible via the Kingsway Tunnel. Lease Length - 99 years from the 1st July 1970 Ground Rent - £16,727pa

Tenure

Leasehold

Energy Efficiency Rating (EPC)

Current Rating E

Services

Interested parties are requested to make their own enquiries to the relevant authorities as to the availability of services.

Local Authority

Wirral Council

Important Notice to Prospective Buyers:

We draw your attention to the Special Conditions of Sale within the Legal Pack, referring to other charges in addition to the purchase price which may become payable. Such costs may include Search Fees, reimbursement of Sellers costs and Legal Fees, and Transfer Fees amongst others.

Additional Fees

Administration Charge - Purchasers will be required to pay an administration fee of 0.9% inc VAT, subject to a minimum of £1500 inc VAT.

Disbursements - Please see the legal pack for any disbursements listed that may become payable by the purchaser on completion.

View Larger Map

Disclaimer: The map preview provided above is for general guidance only and may not accurately reflect the exact location or surrounding buildings. Prospective buyers and interested parties are strongly advised to independently verify the precise location and surroundings before bidding.