For Sale By Auction | 12:00, 10 September 2024 | Lot 5

182 Pilsworth Road, Heywood, OL10 3DY

Sold After

  • Detached House
  • 3 Bedrooms
  • Tenure: Leasehold

Call the team on 0161 925 3254 for more information

Auction Date

Tue 10/09/2024

Auction Time

12:00

Auction Venue

Live Stream

Viewing Times:

Tue 3 Sep

2:00pm-2:30pm

Attention builders & speculators!

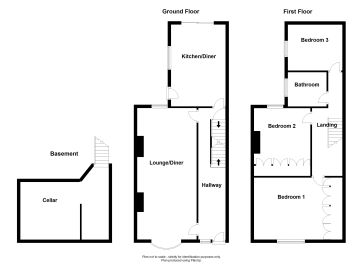
We are pleased to present this substantial, three bedroom detached property requiring a schedule of renovation. Accommodation comprises, entrance hall, spacious open plan lounge and dining room, and kitchen to the ground floor. To the first floor are three good sized bedrooms and family bathroom. To the lower ground floor is a cellar. Externally, there are gardens to the front & rear. Pilsworth Road provides an extremely convenient location ideal for transport links including the new link road. The property is within easy walking distance from Woodland Primary School and Heywood Town Centre. Lease Length - 900 years from 3 June 1882 Ground Rent - Peppercorn

Tenure

Leasehold

Ground Floor

Lounge/Diner Kitchen/Diner

First Floor

Bedroom 1 Bedroom 2 Bedroom 3 Bathroom

Energy Efficiency Rating (EPC)

Current Rating F

Services

Interested parties are requested to make their own enquiries to the relevant authorities as to the availability of services.

Local Authority

Rochdale Metropolitan Borough Council - Council Tax Band B

Important Notice to Prospective Buyers:

We draw your attention to the Special Conditions of Sale within the Legal Pack, referring to other charges in addition to the purchase price which may become payable. Such costs may include Search Fees, reimbursement of Sellers costs and Legal Fees, and Transfer Fees amongst others.

Additional Fees

Administration Charge - Purchasers will be required to pay an administration fee of 0.9% inc VAT, subject to a minimum of £1500 inc VAT.

Disbursements - Please see the legal pack for any disbursements listed that may become payable by the purchaser on completion.

View Larger Map

Disclaimer: The map preview provided above is for general guidance only and may not accurately reflect the exact location or surrounding buildings. Prospective buyers and interested parties are strongly advised to independently verify the precise location and surroundings before bidding.