For Sale By Auction | 12:00, 05 September 2023 | Lot 21

304 Stamfordham Road, Newcastle upon Tyne, Tyne and Wear NE5 2LB

Sold £97,000

  • Semi-Detached House
  • 4 Bedrooms
  • Tenure: See Legal Pack

Call the team on 0191 908 9691 for more information

Auction Date

Tue 05/09/2023

Auction Time

12:00

Auction Venue

Live Stream

Semi detached property in need of refurbishment

Four bedroom semi detached property in a sought after location. In need of refurbishment, the property comprises: hall, sitting room, dining area and kitchen to the ground floor, 2 bedrooms and bathroom to the first floor and 2 bedrooms to the second floor. Outside is a driveway and gardens. Priced to sell.

Tenure

See Legal Pack

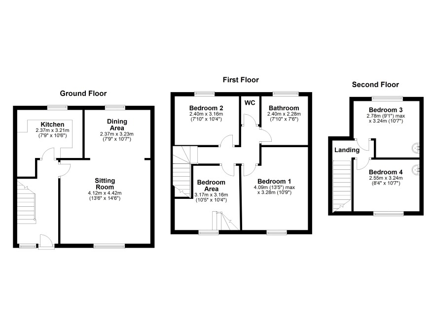
Ground Floor

Hall Sitting Room 13'6 x 14'6 Dining Area 7'9 x 10'7 Kitchen 7'9 x 10'6

First Floor

Bedroom One 13'5 max x 10'9 Bedroom Two 7'10 x 10'4 Bathroom 7'10 x 7'6 Separate WC Bedroom Area 10'5 x 10'4

Second Floor

Bedroom Three 9'1 x 10'7 Bedroom Four 8'4 x 10'7

Outside

Front, side and rear garden

Viewing

To view, please call Your Move, West Denton on 0191 2676374

Energy Efficiency Rating (EPC)

Current Rating TBC

Services

Interested parties are invited to make their own enquiries to the relevant authorities as to the availability of the services.

Local Authority

Newcastle upon Tyne City Council

Solicitors

Law 22, Ref: Claire Stanton, Tel: 0191 4884950

Offered in association with

Your Move Chris Stonock

Important Notice to Prospective Buyers:

We draw your attention to the Special Conditions of Sale within the Legal Pack, referring to other charges in addition to the purchase price which may become payable. Such costs may include Search Fees, reimbursement of Sellers costs and Legal Fees, and Transfer Fees amongst others.

Additional Fees

Buyer's Premium - £1800 inc VAT payable on exchange of contracts.

Administration Charge - £1200 inc VAT payable on exchange of contracts.

Disbursements - Please see the legal pack for any disbursements listed that may become payable by the purchaser on completion.

View Larger Map

Disclaimer: The map preview provided above is for general guidance only and may not accurately reflect the exact location or surrounding buildings. Prospective buyers and interested parties are strongly advised to independently verify the precise location and surroundings before bidding.