For Sale By Auction | 12:00, 13 February 2024 | Lot 22

96 Yarm Road, Darlington, County Durham DL1 1XF

Sold After

  • Terraced House
  • 3 Bedrooms
  • Tenure: See Legal Pack

Call the team on 0191 908 9691 for more information

Auction Date

Tue 13/02/2024

Auction Time

12:00

Auction Venue

Live Stream

ATTENTION PROPERTY INVESTORS THREE BEDROOM END TERRACE

Three bedroom End Terraced property in an ideal location of Darlington with all the regeneration and exciting announcements recently made. Located on Yarm Lane and walking distance from Darlington Station which is currently undergoing a multi million pound refurbishment. Darlington is a hub to many commuters heading both North And South on the East Coast Mainline. Just beyond the station is the main Town Centre with an array of shops, bars, and restaurants. With the announcement of a Northern Treasury also coming to the area bringing with it over 700 new jobs Darlington is certainly a place many people are looking to invest. This three bedroom has internal accommodation comprising in brief, entrance hall, lounge/dining room, kitchen, rear lobby and bathroom to the ground floor with landing and three bedrooms to the first floor. UpVC windows and doors with gas central heating. Externally is on street parking and enclosed yard to the rear. Viewing is highly recommended Council tax - A EPC - D

Tenure

See Legal Pack

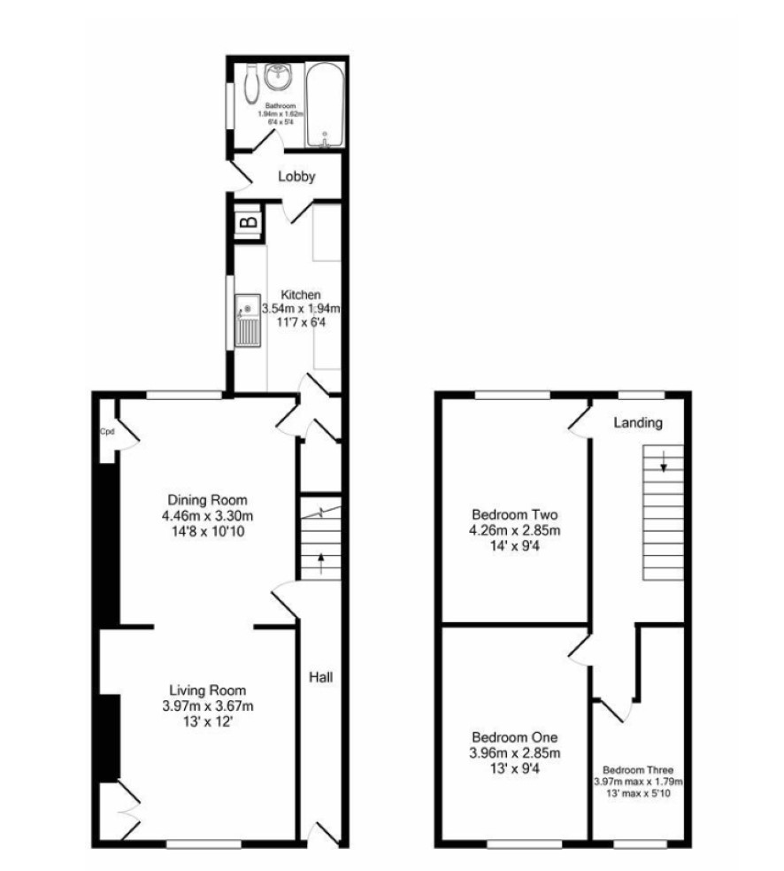
Ground Floor

Hallway Living Room - 3.97m x 3.67m Dining Room - 4.46m x 3.30m Kitchen - 3.54m x 1.94m Lobby Bathroom/WC

First Floor

Landing Bedroom 1 - 3.96m x 2.85m Bedroom 2 - 4.26m x 2.85m Bedroom 3 - 3.97m x 1.79m

AUCTIONEER'S NOTES

Property construction - Standard Electricity supply - Mains Water supply - Mains Sewerage - Mains Heating – Gas Broadband - Standard Speed - 13 mbps Mobile signal / coverage - O2/Vodafone - Very Good, EE /Three - Poor Parking - None Building Safety - See Legal Pack Restrictions - See Legal Pack Rights and easements - See Legal Pack Flood risk - Very Low Coastal erosion - Very Low Planning permission - See Legal Pack Accessibility / adaptions - See Legal Pack Coalfield or mining area - See Legal Pack

Viewings

Please contact Auction House North East on 01642 931060 for the viewing schedule

Energy Efficiency Rating (EPC)

Current Rating D

Services

Interested parties are invited to make their own enquiries to the relevant authorities as to the availability of the services.

Local Authority

Darlington Borough Council

Solicitors

HNW Law, Suite 17, Ref: HNW Law, Tel: 01642 050800

Offered in association with

EverBest Properties

Important Notice to Prospective Buyers:

We draw your attention to the Special Conditions of Sale within the Legal Pack, referring to other charges in addition to the purchase price which may become payable. Such costs may include Search Fees, reimbursement of Sellers costs and Legal Fees, and Transfer Fees amongst others.

Additional Fees

Buyer's Premium - £1800 inc VAT payable on exchange of contracts.

Administration Charge - £1200 inc VAT payable on exchange of contracts.

Disbursements - Please see the legal pack for any disbursements listed that may become payable by the purchaser on completion.

View Larger Map

Disclaimer: The map preview provided above is for general guidance only and may not accurately reflect the exact location or surrounding buildings. Prospective buyers and interested parties are strongly advised to independently verify the precise location and surroundings before bidding.