For Sale By Auction | 12:00, 13 February 2024 | Lot 30

7 Williamson Square, Wingate TS28 5JQ

Sold £45,000

  • Semi-Detached House
  • 2 Bedrooms
  • Tenure: Freehold

Call the team on 0191 908 9691 for more information

Auction Date

Tue 13/02/2024

Auction Time

12:00

Auction Venue

Live Stream

TWO BEDROOM SEMI-DETACHED HOUSE WHICH WILL APPEAL TO INVESTORS

A sizeable two Bedroom semi-detached property found in the heart of Wingate, within close proximity of local shops, ample local amenities and easy access to motorways. This would make an ideal addition to your portfolio. The property briefly consists of Entrance; Living Room; Kitchen and Bathroom t the ground floor and two bedrooms to the first floor. Externally is a driveway to the front and a rear garden and patio area. With uPVC double glazing and gas central heating. EPC Rating D. Council Tax Band A

Tenure

Freehold

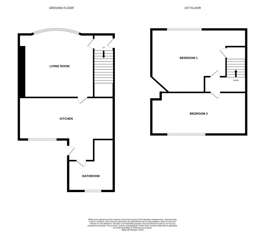
Ground Floor

Kitchen: 15’2” x 8’ Living Room: 12’7” x 10’6” Bathroom: 5’10” x 9’1”

First Floor

Bedroom 1: 15’4” x 13’4” Bedroom 2: 15’3” x 8’5”

Auctioneers Notes

Property construction - Standard Electricity supply - Mains Water supply - Mains Sewerage - Mains Heating – Gas Broadband - Standard Speed - 17 mbps Mobile signal / coverage - O2 - Very Good, Vodafone/ EE /Three – Good Parking – Driveway Building Safety – Install Gas Fired Boiler - 2017 Restrictions - See Legal Pack Rights and easements - See Legal Pack Flood risk - Low Coastal erosion - Very Low Planning permission - See Legal Pack Accessibility / adaptions - See Legal Pack Coalfield or mining area - See Legal Pack

Viewings

Please contact Auction House North East on 01642 931060 for the viewing schedule

Services

Interested parties are invited to make their own enquiries to the relevant authorities as to the availability of the services.

Local Authority

Durham County Council

Solicitors

Wilsons Solicitors, Ref: Oliver Taman

Important Notice to Prospective Buyers:

We draw your attention to the Special Conditions of Sale within the Legal Pack, referring to other charges in addition to the purchase price which may become payable. Such costs may include Search Fees, reimbursement of Sellers costs and Legal Fees, and Transfer Fees amongst others.

Additional Fees

Buyer's Premium - £900 inc VAT payable on exchange of contracts.

Administration Charge - £1200 inc VAT payable on exchange of contracts.

Disbursements - Please see the legal pack for any disbursements listed that may become payable by the purchaser on completion.

View Larger Map

Disclaimer: The map preview provided above is for general guidance only and may not accurately reflect the exact location or surrounding buildings. Prospective buyers and interested parties are strongly advised to independently verify the precise location and surroundings before bidding.