For Sale By Auction | 12:00, 09 April 2024 | Lot 30

22 Gladstone Street, Crook, County Durham DL15 9EE

Sold £30,000

  • Terraced House
  • 2 Bedrooms
  • Tenure: Freehold

Call the team on 0191 908 9691 for more information

Auction Date

Tue 09/04/2024

Auction Time

12:00

Auction Venue

Live Stream

TWO BEDROOM TERRACE HOME - IN NEED OF REFURBISHMENT

This two bedroom terraced property is in need of full refurbishment throughout, the accommodation comprises in brief, lounge and kitchen to the ground floor with landing, two bedrooms and bathroom on the first floor. Located in the Crook and local amenities and schools are in close proximity. The Larger Towns of Crook, Bishop Auckland and Spennymoor all accessible via car or public transport. EPC rating - C Council Tax Band - A

Tenure

Freehold

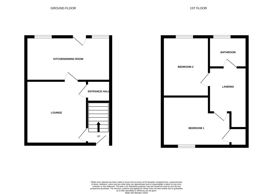
Ground Foor

Lounge Kitchen

First Floor

Bedroom Bedroom Bathroom/WC

Auctioneer's Notes

Property construction - Standard Electricity supply - Mains Water supply - Mains Sewerage - Mains Heating – Gas Broadband - Standard Speed - 17 mbps Mobile signal / coverage -O2– Very Good / EE/Three/ Vodafone - Good Parking – No Building Safety – See Legal Pack Restrictions – Yes see Title documents in Legal Pack Rights and easements - See Legal Pack Flood risk –Medium Coastal erosion –Very Low Planning permission – See Legal Pack Accessibility / adaptions - See Legal Pack Coalfield or mining area - See Legal Pack

Viewings

Please contact Auction House North East on 01642 931060 for the viewing schedule

Services

Interested parties are invited to make their own enquiries to the relevant authorities as to the availability of the services.

Local Authority

Durham County Council

Solicitors

HNW Law, Suite 17, Ref: HNW Law, Tel: 01642 050800

Offered in association with

Reeds Rains - Durham

Important Notice to Prospective Buyers:

We draw your attention to the Special Conditions of Sale within the Legal Pack, referring to other charges in addition to the purchase price which may become payable. Such costs may include Search Fees, reimbursement of Sellers costs and Legal Fees, and Transfer Fees amongst others.

Additional Fees

Buyer's Premium - £1800 inc VAT payable on exchange of contracts.

Administration Charge - £1200 inc VAT payable on exchange of contracts.

Disbursements - Please see the legal pack for any disbursements listed that may become payable by the purchaser on completion.

View Larger Map

Disclaimer: The map preview provided above is for general guidance only and may not accurately reflect the exact location or surrounding buildings. Prospective buyers and interested parties are strongly advised to independently verify the precise location and surroundings before bidding.